Light-filled home with planning consent to add three bedrooms.
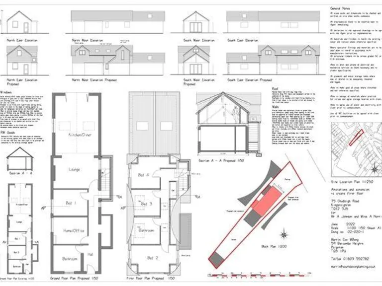
Detached single-storey bungalow on a level plot
Set on a level plot in Kingsteignton, this extended detached bungalow offers light, open-plan living and straightforward family accommodation. The current layout provides two double bedrooms and a large open-plan lounge/kitchen/breakfast room with Velux windows and exposed beams that flood the space with daylight. Outside, a gravel driveway provides ample off-street parking and a generous enclosed rear garden is laid to patio and low-maintenance turf with a useful workshop/shed.
Significant recent mechanical and electrical work reduces immediate maintenance: the property was rewired, replumbed and fitted with a new Baxi boiler in 2018, and benefits from mains gas central heating and uPVC double glazing. Importantly, planning consent has been granted for a loft conversion to create three further bedrooms and a bathroom, presenting clear scope to increase living space and value (subject to the existing consent being implemented). The home occupies a convenient location close to primary and secondary schools, local shops and main road links to Newton Abbot and the A38/A380.
Buyers should note the bungalow is a mid-20th century build (c.1950–66) with cavity walls likely uninsulated, so thermal upgrades (wall insulation) may be advisable to improve efficiency. The property has one bathroom serving two bedrooms in the current layout; the loft consent would address this if carried out. Overall, this is a low-risk, well-located bungalow with immediate move-in benefits and genuine renovation/extension potential for a growing family or buyers seeking added value.
2 bedroom bungalow for sale in Blindwell Avenue, Kingsteignton, Newton Abbot, Devon, TQ12 — £325,000 • 2 bed • 1 bath • 742 ft²
2 bedroom detached bungalow for sale in Lyndale Road, Kingsteignton, TQ12 — £330,000 • 2 bed • 1 bath • 924 ft²
2 bedroom bungalow for sale in Meadowcroft Drive, Kingsteignton, Newton Abbot, Devon, TQ12 — £375,000 • 2 bed • 1 bath • 971 ft²
2 bedroom semi-detached bungalow for sale in Orchid Avenue, Kingsteignton, Newton Abbot, Devon. , TQ12 — £305,000 • 2 bed • 1 bath • 842 ft²
2 bedroom detached bungalow for sale in Meadowcroft Drive, Kingsteignton, Newton Abbot, TQ12 3PB, TQ12 — £300,000 • 2 bed • 1 bath • 646 ft²
2 bedroom detached bungalow for sale in Princess Road, Kingsteignton, NEWTON ABBOT, Devon. , TQ12 — £260,000 • 2 bed • 1 bath • 1112 ft²


















































