Quiet cul-de-sac location close to schools and station for easy commuting.
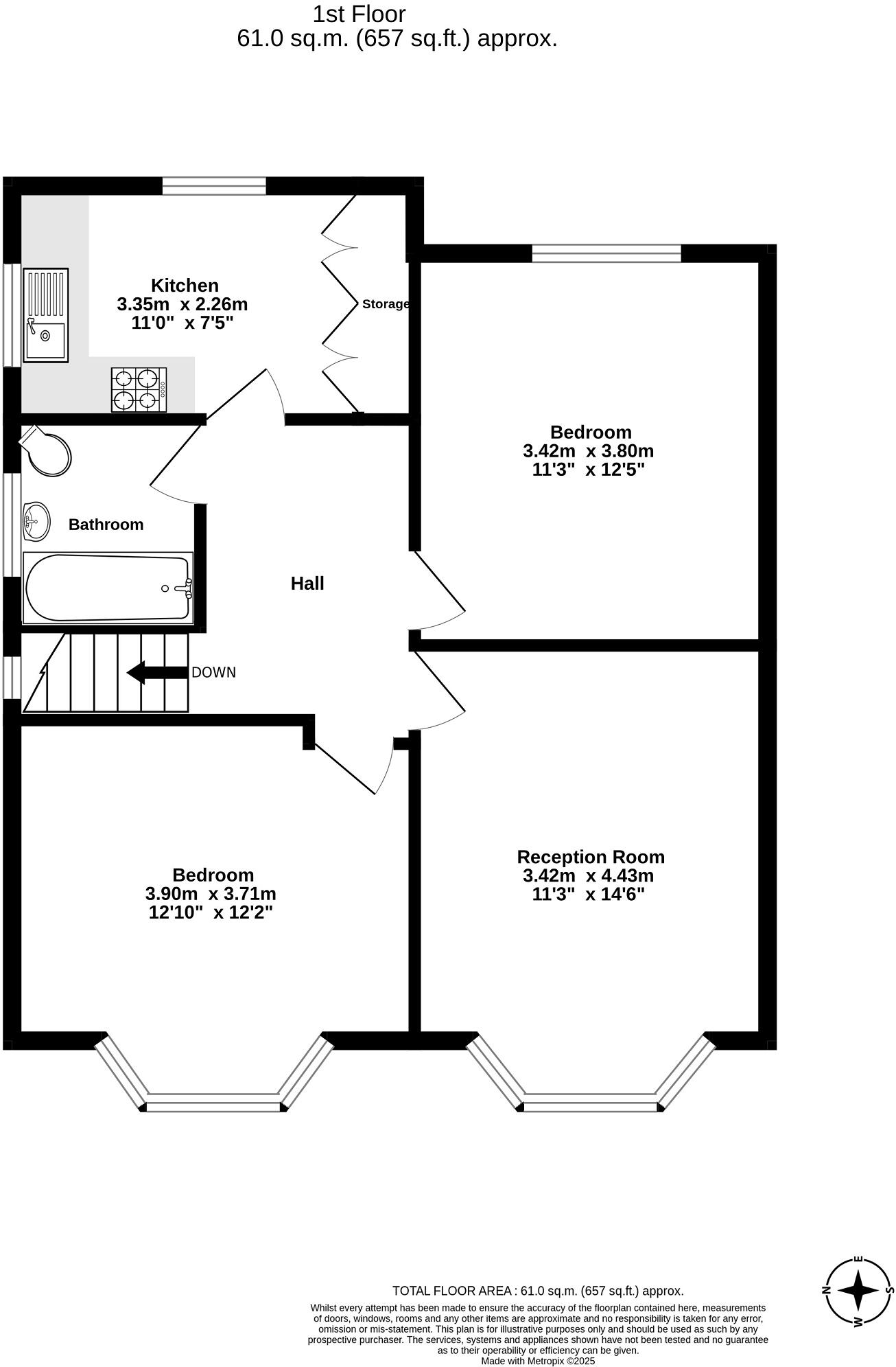
Two double bedrooms, ready to move into
Living room 14'6" x 11'3" with bay window
Modern fitted kitchen, 11' x 7'5"
Private rear garden approx. 35' x 32'
Off-street parking for two cars
Leasehold — 107 years remaining
Nominal ground rent £7; council tax affordable
Cavity walls assumed uninsulated — consider insulation upgrade
Set on a quiet cul-de-sac in Chessington, this two-double-bedroom first-floor maisonette offers straightforward suburban living with low immediate upkeep. The layout includes a 14'6" x 11'3" living room, a modern fitted kitchen and a white bathroom suite — presented in good order and ready to move into.
Practical features include double glazing, mains gas central heating and off-street parking for two cars. A private rear garden (approximately 35' x 32') provides outdoor space for relaxing, play or container gardening; there is also an outbuilding/shed.
The property sits close to bus routes, local shops, Chessington South station and several well-rated schools, making it suitable for first-time buyers seeking convenient commuter and family amenities. Low flood risk and a generally affluent area add to its appeal.
This is a leasehold home with 107 years remaining and a nominal ground rent of £7. The building dates from the 1930s and has cavity walls assumed to lack insulation — upgrading wall insulation would improve comfort and energy efficiency. Overall, the maisonette represents a tidy, practical purchase with good rental or owner-occupier potential.
2 bedroom maisonette for sale in Mansfield Road, Chessington, Surrey. KT9 2PX, KT9 — £325,000 • 2 bed • 1 bath • 646 ft²
2 bedroom ground floor maisonette for sale in Frimley Road, Chessington, Surrey. KT9 1QT, KT9 — £325,000 • 2 bed • 1 bath • 614 ft²
2 bedroom maisonette for sale in Cheshire Gardens, Chessington, Surrey. KT9 — £380,000 • 2 bed • 1 bath • 646 ft²
2 bedroom maisonette for sale in Garrison Lane, Chessington, Surrey. KT9 2LJ, KT9 — £325,000 • 2 bed • 1 bath • 614 ft²
2 bedroom ground floor maisonette for sale in Garrison Lane, Chessington, Surrey. KT9 2LB, KT9 — £350,000 • 2 bed • 1 bath • 729 ft²
2 bedroom maisonette for sale in Queen Marys Drive, New Haw, KT15 — £305,000 • 2 bed • 1 bath • 686 ft²


































