Spacious character house with large garden and scope for improvement.
Large double-fronted Victorian semi with bay windows front and rear
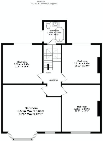
Four bedrooms, three are spacious doubles
Large lounge and separate dining room, well-suited for family living
Oak-fitted kitchen with integrated appliances, modern bathroom
Large elevated plot with private front and rear gardens
Detached garage appears derelict and will need repair or replacement
Only one bathroom for four bedrooms may need adaptation
Area recorded as very deprived; crime levels reported as very low
This double-fronted Victorian semi-detached home balances original period character with modern updates across generous family accommodation. Large bay windows flood the principal rooms with light, while the oak kitchen and contemporary bathroom add practical, up-to-date finishes. The property sits on an elevated, large plot with private front and rear gardens and a sizeable detached garage.
The layout suits family life: a large lounge and separate dining room provide flexible living and entertaining space, and four first-floor bedrooms include three doubles. Practical benefits include UPVC windows and doors, fast broadband, excellent mobile signal, and easy walking access to the town centre, local schools, and nearby train station.
Notable maintenance and limitations are transparent: the detached garage/utility building appears derelict and unkempt and will need repair or replacement, and there is only one bathroom for four bedrooms which may require adaptation for larger families. The property sits in an area recorded as very deprived — local services vary — though reported crime levels are very low. Buyers should allow for cosmetic updating in places and consider the elevated steps and patios when planning accessibility works.
Overall, this is a spacious family home with strong potential for improvement and extension (subject to consents) on a large plot. It will suit buyers seeking characterful Victorian proportions, outdoor space and good connectivity, prepared to carry out some targeted works to maximise value.
4 bedroom semi-detached house for sale in Six Bells, Abertillery, NP13 — £335,000 • 4 bed • 1 bath • 1055 ft²
3 bedroom semi-detached house for sale in North Road, Pontypool, NP4 — £215,000 • 3 bed • 1 bath • 1098 ft²
4 bedroom semi-detached house for sale in Alexandra Road, Six Bells, NP13 — £240,000 • 4 bed • 2 bath • 1432 ft²
3 bedroom terraced house for sale in Alexandra Road, Six Bells, Abertillery, NP13 — £138,000 • 3 bed • 1 bath • 969 ft²
2 bedroom terraced house for sale in Bryngwyn Road, Abertillery, Gwent, Blaenau Gwent, NP13 — £128,000 • 2 bed • 1 bath • 619 ft²
2 bedroom end of terrace house for sale in Tillery Street, Abertillery, NP13 — £160,000 • 2 bed • 1 bath • 765 ft²






















































































































































































































