**Standout Features:**
- Spacious 9.42 acres of amenity grassland with River Derwent frontage.
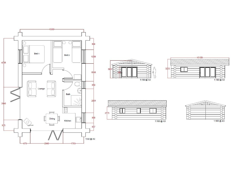
- Planning consent for a timber holiday cabin with approved design variations.
- Mains water and electricity services already connected.
- Chain-free and freehold tenure, providing immediate possession.
- Located in a tranquil hamlet with low crime rates and fast broadband access.
**Property Summary:**
Discover a rare investment opportunity in the peaceful countryside near the villages of Kexby and Wilberfoss, just 6 miles from the historic city of York. This expansive 9.42-acre parcel of land boasts planning permission for a charming single-storey timber holiday cabin, complete with an open-plan living space, bi-fold doors, two bedrooms, and modern utility connections already in place. It's perfect for those seeking a tranquil weekend retreat or a potential rental income in an affluent area with a strong demand for holiday accommodations.
While the land presents incredible development potential, it’s important to note that viewing is to be done cautiously given the rural setting. The surrounding community is characterized by well-rated local schools, enhancing its appeal for families looking to settle in a serene, pastoral environment. Don't miss out on this unique opportunity—secure your future today by exploring the possibilities that this exceptional piece of land has to offer.
Land for sale in Cross Moor Lane, Haxby, York, YO32 — £452,000 • 1 bed • 1 bath
Land for sale in Elvington, York, YO41 — £120,000 • 1 bed • 1 bath
Land for sale in Land at Claxton Village, York, YO60 7RX, YO60 — £100,000 • 1 bed • 1 bath
House for sale in 3.36 Acres of Land at Ellerton, YO42 — £33,000 • 1 bed • 1 bath
Land for sale in 22.24 acres of Land at Knapton, York, YO26 — £330,000 • 1 bed • 1 bath
5 bedroom barn conversion for sale in Kexby, York, YO41 — £1,450,000 • 5 bed • 4 bath • 10072 ft²


































