Move-in ready three-bedroom house with garden and garage near good schools.
Chain free detached three-bedroom home with newly fitted kitchen
Open-plan sitting/dining room with French doors to rear garden
Detached single garage and off-road parking with gated rear access
Generous rear garden with lawn and patio for entertaining
Compact internal size (~775 sq ft); smaller than many detached homes
Single family bathroom only; potential peak-time congestion
EPC rating D; may need energy-efficiency upgrades
Area records higher-than-average crime rates
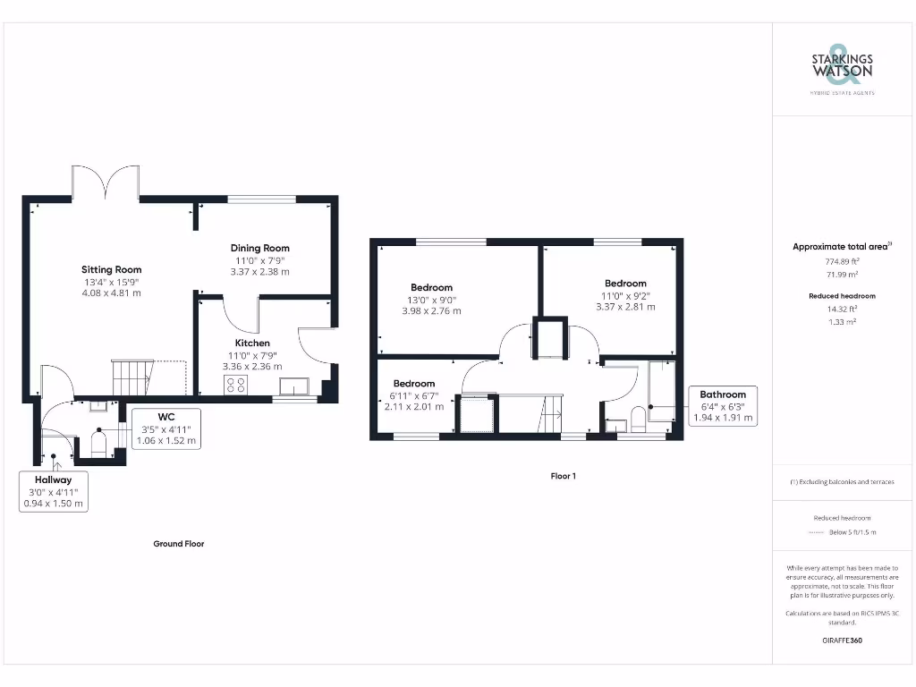
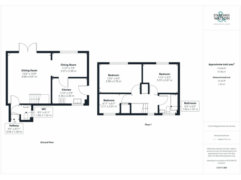
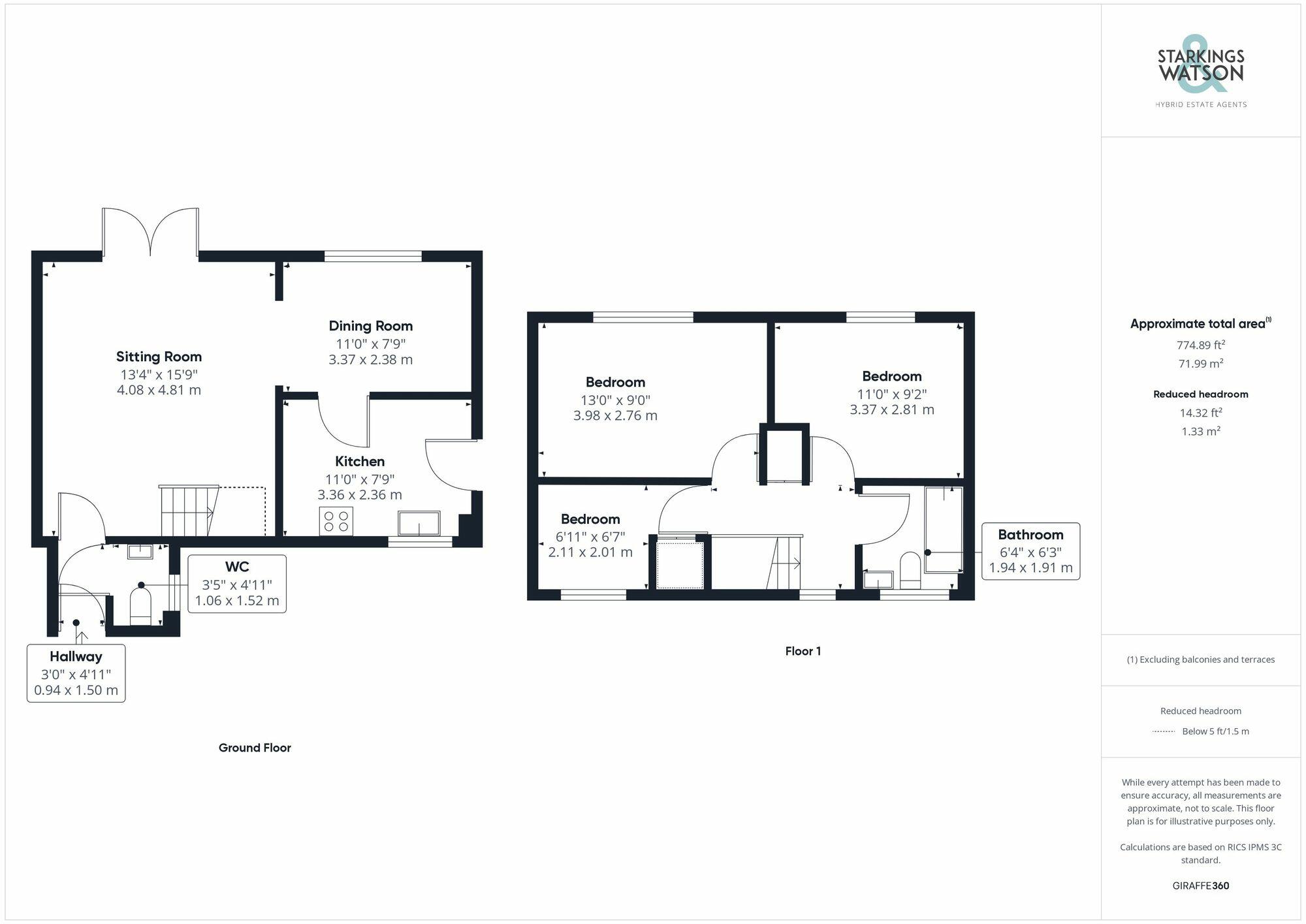
This detached three-bedroom house on Spiers Way is a ready-to-live-in family home offered with no onward chain. Recent cosmetic works and a newly fitted kitchen make day‑one occupancy straightforward; the open-plan sitting/dining room and French doors give easy flow to a generous rear garden and patio for family entertaining.
Practical features include off-road parking, a detached single garage with rear access, and mains gas central heating with a boiler and radiators. The layout is compact (about 775 sq ft) but arranged for family living: ground-floor WC, open-plan living, and three bedrooms upstairs with a family bathroom.
Buyers should note material drawbacks factually: the property is relatively small for a detached house and has only one bathroom. The EPC rating is D and the area records higher-than-average crime levels. While generally newly renovated cosmetically, further upgrade or energy-efficiency improvements may be desired by some purchasers.
Well placed for local schools rated Good to Outstanding, this home suits families seeking a move-in-ready property with outdoor space and parking, or buyers looking to secure a freehold detached house in a convenient town location without a long chain.
3 bedroom detached house for sale in Speirs Way, Diss, IP22 — £270,000 • 3 bed • 1 bath • 792 ft²
3 bedroom semi-detached house for sale in The Old Coaching Place, Diss, IP22 — £240,000 • 3 bed • 2 bath • 937 ft²
3 bedroom terraced house for sale in Pearce Road, Diss, IP22 — £230,000 • 3 bed • 1 bath • 728 ft²
3 bedroom detached house for sale in Spiers Way, Diss, IP22 — £270,000 • 3 bed • 1 bath • 805 ft²
3 bedroom detached house for sale in Bullfinch Drive, Harleston, IP20 — £270,000 • 3 bed • 2 bath • 980 ft²
1 bedroom end of terrace house for sale in Constable Close, Diss, IP22 — £175,000 • 1 bed • 1 bath • 467 ft²






























































