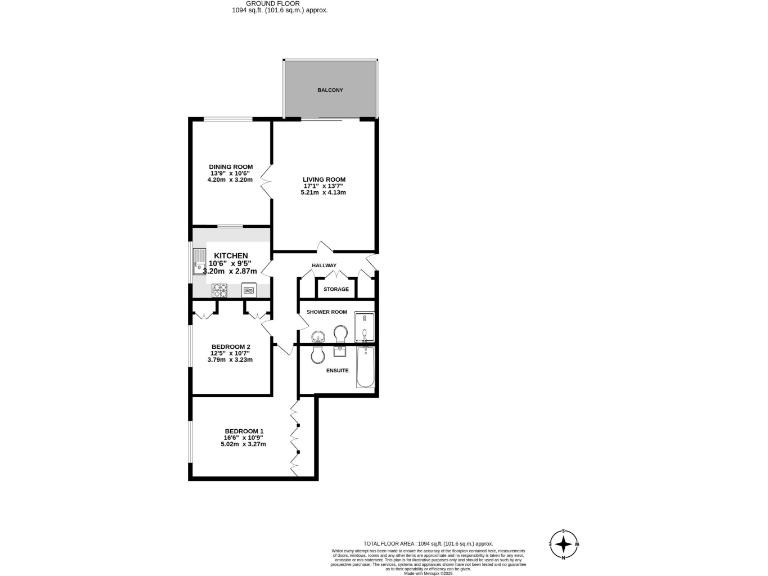
Generous 1,094 sq ft home with balcony, long lease and share of freehold near Radlett station.
Approx 1,094 sq ft — large footprint for a two-bedroom flat
Set just off Gills Hill in central Radlett, this generously proportioned two-bedroom flat extends to approximately 1,094 sq ft and offers flexible living for couples, small families or investors. The principal reception opens onto a private balcony, and a separate dining room creates a natural space for entertaining or home working. The principal bedroom benefits from an en-suite, with a further shower room and useful hallway storage adding day-to-day practicality.
The flat sits within a well-maintained mid-terrace block dating from the 1950s–60s, with double glazing fitted after 2002 and gas central heating via boiler and radiators. The long lease (circa 952 years) and share of freehold offer secure tenure. Its location is a core strength: close to Radlett village amenities, excellent schools and the mainline station for commuter links.
Buyers should note the service charge is above average (circa £4,400) and local council tax is described as expensive. There is no private garden beyond the balcony, and the area records above-average crime levels — factors to weigh against the property's size and location. The interior shows some dated elements and would benefit from modernization to realise full value.
Overall this is a spacious, well-located flat with strong commuter appeal and refurbishment potential. It will suit purchasers seeking a large two‑bed home with low maintenance grounds or investors targeting lettability in a very affluent neighbourhood.
2 bedroom apartment for sale in Nightingale Court, Park Road, Radlett, Hertfordshire, WD7 — £490,000 • 2 bed • 2 bath • 918 ft²
2 bedroom apartment for sale in Hawksmoor, Harris Lane, Shenley, Radlett, WD7 — £240,000 • 2 bed • 1 bath • 754 ft²
2 bedroom flat for sale in Brook Court, Watling Street, Radlett, WD7 — £379,000 • 2 bed • 2 bath • 776 ft²
2 bedroom flat for sale in Craigmount, Radlett, WD7 — £359,500 • 2 bed • 1 bath • 669 ft²
2 bedroom flat for sale in Brook Court, Watling Street, Radlett, WD7 — £340,000 • 2 bed • 2 bath • 704 ft²
2 bedroom flat for sale in Brook Court, Radlett, WD7 — £315,000 • 2 bed • 2 bath • 657 ft²






































































































