Light-filled period home with large balconies close to Portobello Road and parks.
Extremely large 1,907 sq ft top-floor maisonette with three bedrooms
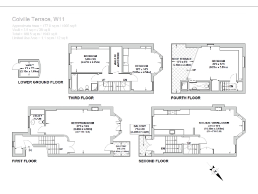
This bright three-bedroom maisonette occupies the top floors of a late-Victorian mid-terrace on Colville Terrace, moments from Portobello Road and Westbourne Grove. At roughly 1,907 sq ft the layout feels unusually spacious for the area, with a double reception, high three-metre ceilings and a light-filled open-plan kitchen/living area that suits family living and entertaining.
The principal bedroom on the top floor opens onto a south-west facing roof terrace and a separate south-facing balcony provides additional outdoor space and pleasant urban views. The contemporary kitchen and well-proportioned reception room add modern comfort while retaining period character in the building’s proportions.
Practical points to know: the property is sold as a share of freehold with c.84 years remaining on the lease. The building’s solid brick construction likely lacks cavity insulation, so buyers should budget for thermal upgrades and potential historic-property maintenance. Council tax is described as quite expensive and local crime statistics are above average.
This maisonette will suit buyers wanting generous living spaces in a prime Notting Hill location — families who value nearby top-rated primary and secondary schools and shoppers who want immediate access to Kensington Gardens, boutiques and Portobello’s amenities. Investors should note the lease length and likely refurbishment costs when modelling returns.
3 bedroom apartment for sale in Colville Terrace, Notting Hill, London, W11 — £2,950,000 • 3 bed • 2 bath • 1907 ft²
3 bedroom flat for sale in Alexander Street, London, W2 — £2,750,000 • 3 bed • 3 bath • 1553 ft²
3 bedroom maisonette for sale in Elgin Crescent, London, W11 — £1,595,000 • 3 bed • 2 bath • 1197 ft²
2 bedroom flat for sale in Colville Road, London, W11 — £1,350,000 • 2 bed • 1 bath • 749 ft²
2 bedroom apartment for sale in Colville Terrace, London, W11 — £2,500,000 • 2 bed • 2 bath • 1502 ft²
3 bedroom flat for sale in Talbot Road, London, W2 — £3,250,000 • 3 bed • 3 bath • 1650 ft²














































































