Spacious family home with annexe and full equestrian facilities on five acres.
Approximately five acres of private grounds with gated driveway and pond
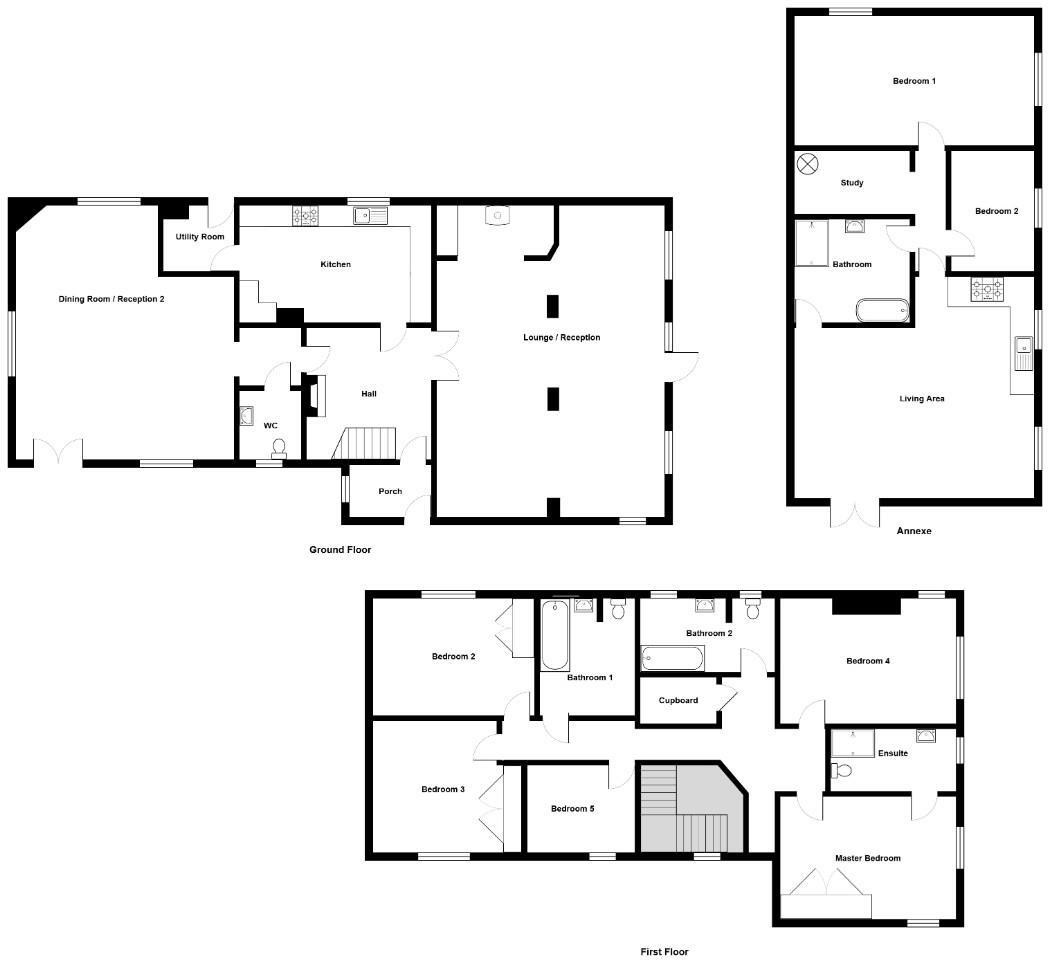
Self-contained two-bedroom annexe with underfloor heating and modern bathroom
Stables, floodlit menage and paddock suitable for equestrian use
Five generous bedrooms but only two main bathrooms in the principal house
Large reception rooms, exposed beams and stone inglenook fireplace
Main heating from oil-fired boiler — requires tank management and running costs
Ample off-street parking, covered vehicle storage and secure office area
Large grounds require regular upkeep and equestrian maintenance
Set on about five acres with gated driveway and far-reaching countryside views, this substantial detached home suits families and equestrian households. The main house offers generous reception rooms, exposed stone and beams, and five well-proportioned bedrooms; a self-contained two-bedroom annexe provides flexible space for relatives or rental income. Outside there are stables, a floodlit menage and paddock alongside extensive parking and covered vehicle storage.
The accommodation blends character features — inglenook fireplace, oak and flagstone floors, leaded windows — with practical upgrades including double glazing and a security alarm. The annexe is modern and comfortable with underfloor heating, an open-plan living area and a contemporary bathroom, making it immediately usable without major work.
Practical points to note: the main house is heated from an oil-fired boiler, which can be more expensive and requires tank management compared with mains gas. The property has only two main bathrooms for five bedrooms, and the large grounds and equestrian facilities will need ongoing maintenance and running costs. These are important considerations for buyers but also reflect the size and potential of the estate.
Overall this is a rare countryside opportunity for buyers seeking privacy, space and equestrian amenities close to Bristol. The annexe adds versatility — suitable for multi-generational living or supplemental income — while the property's scale and character offer scope for further improvement or adaptation to suit a growing family.
8 bedroom character property for sale in High Street, Wick, Bristol, BS30 — £925,000 • 8 bed • 3 bath • 3003 ft²
4 bedroom detached house for sale in Naishcombe Hill, Wick, Bristol, BS30 — £850,000 • 4 bed • 3 bath • 2379 ft²
4 bedroom semi-detached house for sale in The Paddocks, Bath Road, Wick, Bristol, BS30 5RL, BS30 — £775,000 • 4 bed • 2 bath • 2235 ft²
3 bedroom detached house for sale in The Green, Wick, Bristol, Gloucestershire, BS30 — £750,000 • 3 bed • 1 bath • 1266 ft²
6 bedroom detached house for sale in Hisomley, Dilton Marsh, BA13 — £1,600,000 • 6 bed • 4 bath • 11226 ft²
5 bedroom barn conversion for sale in Plunder Street, Bristol, BS49 — £1,100,000 • 5 bed • 3 bath • 4309 ft²














































































































































































































