Chain free family home with large garden and extension potential.
Large 3-bedroom semi-detached on c.1,312 sq ft
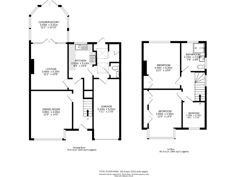
A sizeable three-bedroom semi-detached home on Lavender Avenue offering generous living space across c.1,312 sq ft and a large rear garden. The house has two reception rooms, a conservatory off the rear lounge, kitchen overlooking the garden, and a garage with driveway parking — practical for family life and weekend gardening projects.
The property is chain free and sits in a very affluent, low-crime area with excellent mobile signal and fast broadband — convenient for commuting and home working. Local schools include several highly rated primaries and secondaries within easy reach, making this attractive to families. Neighbouring houses have benefited from wrap-around and loft extensions, and this home has clear scope to extend (side, wrap-around, loft) subject to planning consent.
Buyers should note material facts plainly: the home dates from the 1930s with solid brick walls likely without cavity insulation, an EPC rating of D, and a single family bathroom — improvements will raise comfort and running costs. Council Tax is band E (above average). Overall, the house offers strong potential for renovation and extension for those wanting to add value or adapt the layout to modern family needs.
3 bedroom semi-detached house for sale in Vale Road, Worcester Park, KT4 — £625,000 • 3 bed • 1 bath • 1023 ft²
3 bedroom semi-detached house for sale in Shrubland Grove, Worcester Park, KT4 — £550,000 • 3 bed • 1 bath • 1170 ft²
3 bedroom semi-detached house for sale in Fir Road, Sutton, SM3 — £600,000 • 3 bed • 2 bath • 1388 ft²
3 bedroom semi-detached house for sale in Clarkes Avenue, Worcester Park, KT4 — £550,000 • 3 bed • 1 bath • 965 ft²
3 bedroom semi-detached house for sale in Tolworth Rise North, Surbiton, KT5 — £550,000 • 3 bed • 2 bath • 1312 ft²
3 bedroom terraced house for sale in Lindsay Road, Worcester Park, KT4 — £475,000 • 3 bed • 1 bath • 786 ft²






































































