Five-bedroom Horsell home with extension potential, great schools and strong transport links..
- Five bedrooms on a quiet Horsell cul-de-sac
- Off-street parking and decent private plot
- Two bathrooms plus downstairs cloakroom (limited for five beds)
- Potential to extend and enhance subject to STPP
- Built early 1990s; likely some updating required
- Double glazing present; install date unknown
- Fast broadband, excellent mobile signal, very low crime
- Council tax rated above average
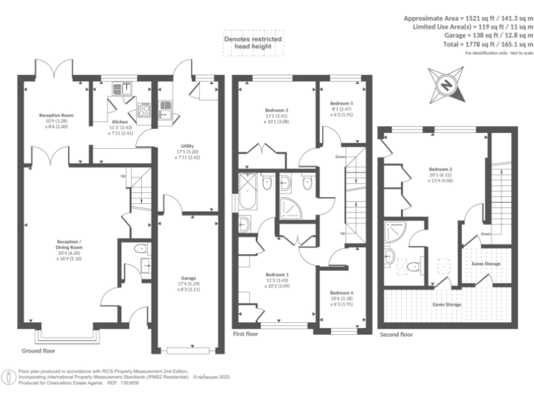
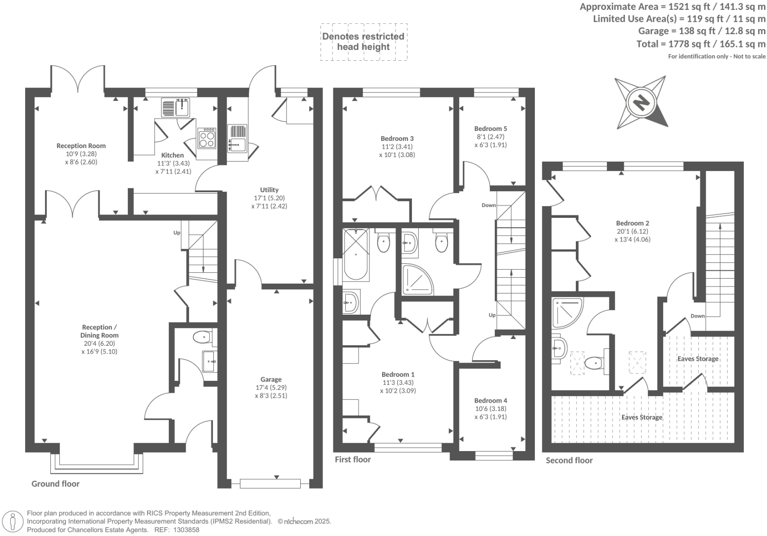
Set on a quiet cul-de-sac in Horsell, this five-bedroom link-detached family home offers practical space and clear scope to improve. The house sits on a decent plot with off-street parking and easy access to Woking town centre and rail links, making commutes straightforward. Local schools rated Good and Outstanding add real appeal for families.
Internally the layout is comfortable and family-friendly across multiple storeys, with a medium living room and functional rooms that can be modernised to taste. There are two bathrooms and a downstairs cloakroom; for a five-bedroom house this means peak-time routines may feel constrained unless a conversion or extension is undertaken.
The property was built in the early 1990s, has double glazing (installation date unknown) and gas central heating via a boiler and radiators. Buyers should expect some updating and potential improvement costs if they prefer contemporary finishes. Planning to extend is possible subject to planning permission (STPP), which could significantly increase space and value.
Practical positives include fast broadband, excellent mobile signal, very low local crime and very affluent surroundings. Notable negatives are the limited bathroom provision for five bedrooms and council tax listed as above average. Overall, the house suits families looking for a well-located home with clear renovation and extension potential.
5 bedroom detached house for sale in Russetts Close, Horsell, GU21 — £1,200,000 • 5 bed • 3 bath • 2545 ft²
4 bedroom detached house for sale in Well Close, Horsell, Surrey, GU21 — £725,000 • 4 bed • 1 bath • 1474 ft²
4 bedroom detached house for sale in Orchard Drive, Horsell, GU21 — £900,000 • 4 bed • 2 bath • 1763 ft²
5 bedroom detached house for sale in Brockenhurst Close, Horsell, Woking, Surrey, GU21 — £1,175,000 • 5 bed • 3 bath • 2587 ft²
5 bedroom end of terrace house for sale in Abbey Road, Horsell, Surrey, GU21 — £750,000 • 5 bed • 1 bath • 1271 ft²
4 bedroom detached house for sale in Horsell, GU21 — £1,250,000 • 4 bed • 2 bath • 2275 ft²


































































































