Chain-free four-bedroom semi with garage, garden and scope to modernise close to York centre..
No onward chain — freehold four-bedroom semi-detached property
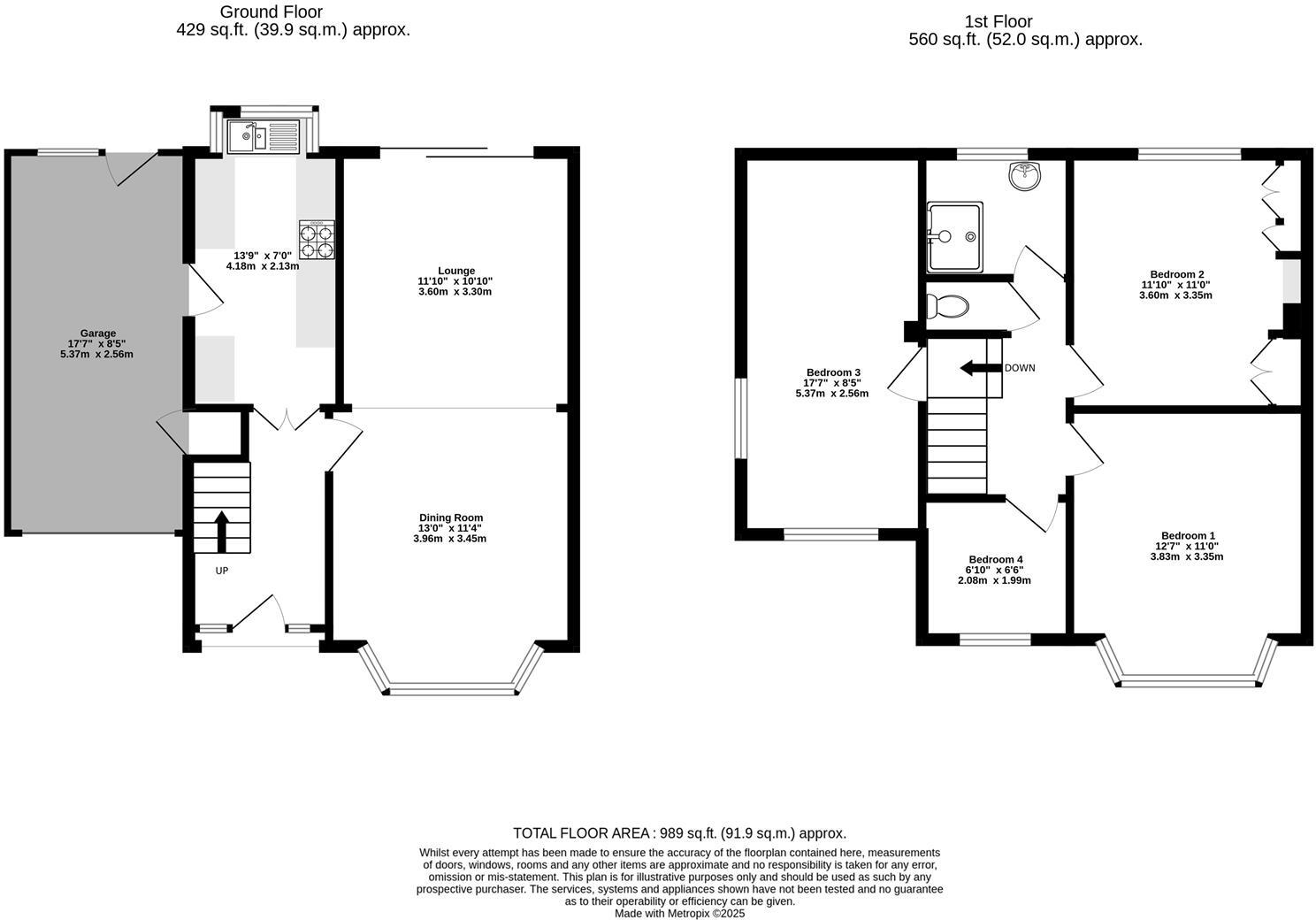
No onward chain and freehold ownership make this four-bedroom semi-detached a straightforward purchase for a family or investor seeking proximity to York city centre and the university. The house sits on a popular residential street and benefits from off-street parking, an integral garage with power, and both front and rear gardens — practical for everyday family life and weekend projects.
The accommodation includes a through lounge/dining room with a front bay and sliding doors to the garden, a recently upgraded kitchen, and four bedrooms across two floors. Gas central heating and double glazing are already in place, and the property has fast broadband and excellent mobile signal — convenient modern essentials for working households and students.
The home does require cosmetic updating throughout and is described as needing renovation; flooring, decoration and modernising works are likely, and the glazing was installed before 2002. There is a single three-piece shower room plus a separate WC, which may be limiting for larger families. Crime in the immediate area is noted as above average and should be considered alongside the property’s many practical advantages.
For buyers prepared to undertake straightforward improvements, this house offers immediate occupancy, scope to add value and good connectivity to local outstanding and good schools, shops and transport links. An internal viewing is recommended for those who can see the potential and want a chain-free move close to York’s amenities.
3 bedroom semi-detached house for sale in Yarburgh Way, York, North Yorkshire, YO10 — £310,000 • 3 bed • 1 bath • 941 ft²
3 bedroom semi-detached house for sale in Cavendish Grove, York YO10 3ND, YO10 — £325,000 • 3 bed • 1 bath • 874 ft²
4 bedroom semi-detached house for sale in Newland Park Drive, York, YO10 — £325,000 • 4 bed • 1 bath • 1194 ft²
3 bedroom semi-detached house for sale in Tang Hall Lane, York, YO31 — £250,000 • 3 bed • 1 bath • 903 ft²
4 bedroom semi-detached house for sale in Bad Bargain Lane, York, YO31 0PF, YO31 — £385,000 • 4 bed • 1 bath • 1195 ft²
4 bedroom semi-detached house for sale in White House Dale, York, YO24 — £495,000 • 4 bed • 1 bath • 1239 ft²


















































































