**Standout Features:**
- **Location:** Conveniently located in Ilfracombe, moments from local amenities and the picturesque harbour.
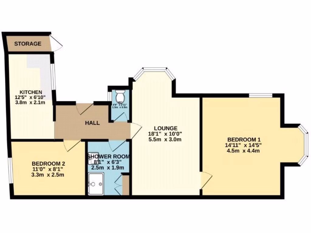
- **Property Type:** Bright, airy two-bedroom ground floor flat with a private entrance.
- **Outdoor Space:** Enclosed private lawned garden, perfect for relaxation or entertaining.
- **Flexible Ownership:** Purchase a share of the property value (up to 50%) through a Home for Life Lifetime Lease, with average savings between 20-50%.
- **Affordability:** Offered at a guide price of £111,250 for those aged 60 or over under the Home for Life plan, significantly below the market value of £166,000.
**Summary:**
This charming two-bedroom ground floor flat in Ilfracombe is tailor-made for the discerning over-60s buyer seeking comfort, accessibility, and a community-centric lifestyle. Bright and welcoming, the property boasts a triple-aspect layout that fills the space with natural light, alongside a spacious living area and a modern shower room. With its own enclosed garden, the flat provides a wonderful outdoor sanctuary—perfect for enjoying warmer days.
Beneficially located near supermarkets, bus stops, and the scenic harbour, this property is ideal whether you're a retiree looking for a low-maintenance home or an investor seeking rental potential, as there are no restrictions on long-term rentals or pet ownership. The current affordable service charge of £50/month includes building insurance, adding to the budget-friendly appeal.
Don’t miss out on this rare opportunity! With the potential for significant savings and an appealing lifestyle in a vibrant area, early viewing is highly recommended. This property offers not just a home, but a foundation for future security and comfort.
1 bedroom apartment for sale in Oxford Grove, Ilfracombe, EX34 — £60,250 • 1 bed • 1 bath • 564 ft²
4 bedroom terraced house for sale in Burrow Road, Ilfracombe, Devon, EX34 — £167,500 • 4 bed • 2 bath • 1080 ft²
2 bedroom ground floor flat for sale in Torrs Park, Ilfracombe, Devon, EX34 — £134,000 • 2 bed • 2 bath • 520 ft²
2 bedroom apartment for sale in Brookdale Avenue, Ilfracombe, EX34 — £107,250 • 2 bed • 1 bath • 971 ft²
1 bedroom house for sale in Regent Place, Ilfracombe, Devon, EX34 — £117,250 • 1 bed • 1 bath • 647 ft²
2 bedroom property for sale in Parliament Court, Ilfracombe, Devon, EX34 — £100,500 • 2 bed • 1 bath • 564 ft²














































