**Standout Features:**
- Generously sized semi-detached family home with 4 bedrooms
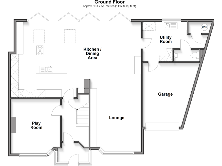
- Modern open plan kitchen/dining area/lounge
- Luxurious main bedroom with en-suite and dressing area
- Large private garden with garden room for extra versatility
- Driveway and garage for secure parking
**Concerns:**
- Begins to show age typical for post-war builds
- Council tax categorized as expensive
Welcome to an exceptional semi-detached property nestled in a desirable residential area, ideal for families and those seeking generous living space. Spanning 1,960 sq ft, this home boasts a brilliant open-plan kitchen/dining area and lounge, perfect for both everyday living and entertaining. Enjoy the comfort of a spacious main bedroom complete with a dressing area and en-suite bathroom, maximizing your privacy and convenience. The additional reception room offers flexible options for a playroom or home office, catering to modern family needs.
Step outside to a large garden that invites relaxation and creativity, complemented by a garden room that enhances your living possibilities. The property includes a driveway and garage, providing ample parking solutions. Conveniently situated near highly-rated schools and local amenities, this home epitomizes comfort, security, and family-friendly living. With fast broadband speeds and low crime rates, it’s perfect for anyone seeking a serene yet connected lifestyle. Don’t miss your chance to secure this beautiful property in a highly sought-after location!
4 bedroom semi-detached house for sale in Barnett Close, Leatherhead, Surrey, KT22 — £599,999 • 4 bed • 1 bath • 1249 ft²
4 bedroom detached house for sale in Eastwick Drive, Great Bookham, Leatherhead, KT23 — £950,000 • 4 bed • 2 bath • 1552 ft²
4 bedroom semi-detached house for sale in Lodge Close, Fetcham, KT22 — £600,000 • 4 bed • 1 bath • 1530 ft²
3 bedroom semi-detached house for sale in Dilston Road, Leatherhead, Surrey, KT22 — £575,000 • 3 bed • 1 bath • 674 ft²
4 bedroom detached house for sale in The Green, Fetcham, KT22 — £899,950 • 4 bed • 2 bath • 2033 ft²
4 bedroom detached house for sale in Randalls Road, Leatherhead, KT22 — £799,950 • 4 bed • 1 bath • 1680 ft²






























































































