Single-storey living with summer room and driveway near Simonside Metro.
Corner plot with lawned front garden and private paved yard
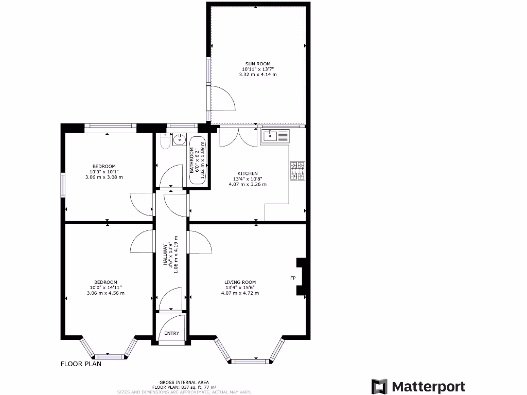
This two-bedroom semi-detached bungalow on a corner plot offers a surprisingly spacious single-storey layout, well suited to downsizers or buyers seeking a practical, low-maintenance home. The living room is bright with a bay window and alcoves; the main bedroom fits a double and the smaller second bedroom works well as a home office or nursery. A large summer room extends the living space and opens off a modern kitchen with cream units and granite-style worktops.
Outside there’s a lawned front garden behind a stone wall and steel gate, plus a private paved yard and a driveway that will accommodate two small cars — a rare convenience in this location. The property benefits from double glazing (installed post-2002), mains gas central heating and an 837 sq ft footprint that feels generous for a bungalow.
Practical points to note: the home is leasehold (long lease remaining, 929 years), sits in an area assessed as deprived with above-average crime rates, and lies in a neighbourhood classified for constrained young families and social renters. Council tax is very cheap. These factors are important for buyers weighing running costs, local services and resale prospects.
Overall this is a comfortable, well-located bungalow with flexible living areas and strong transport links — ideal for someone prioritising ground-floor living, easy upkeep and quick access to shops and the Simonside Metro.
2 bedroom semi-detached bungalow for sale in Sandstone Close, South Shields, NE34 — £249,950 • 2 bed • 1 bath • 764 ft²
3 bedroom bungalow for sale in Bensham Court, South Shields, NE34 — £249,950 • 3 bed • 2 bath • 915 ft²
2 bedroom semi-detached bungalow for sale in Temple Park Road, South Shields, Tyne and Wear, NE34 0EW, NE34 — £300,000 • 2 bed • 1 bath • 844 ft²
2 bedroom bungalow for sale in Southfield Road, South Shields, NE34 — £259,950 • 2 bed • 1 bath • 1637 ft²
2 bedroom semi-detached bungalow for sale in Heron Villas, South Shields, Tyne and Wear, NE34 0TZ, NE34 — £194,995 • 2 bed • 1 bath • 795 ft²
2 bedroom bungalow for sale in Briardene Drive, Wardley, Gateshead, NE10 — £230,000 • 2 bed • 1 bath • 754 ft²


















































































































