Large renovated family home near Marine Lake and top local schools.
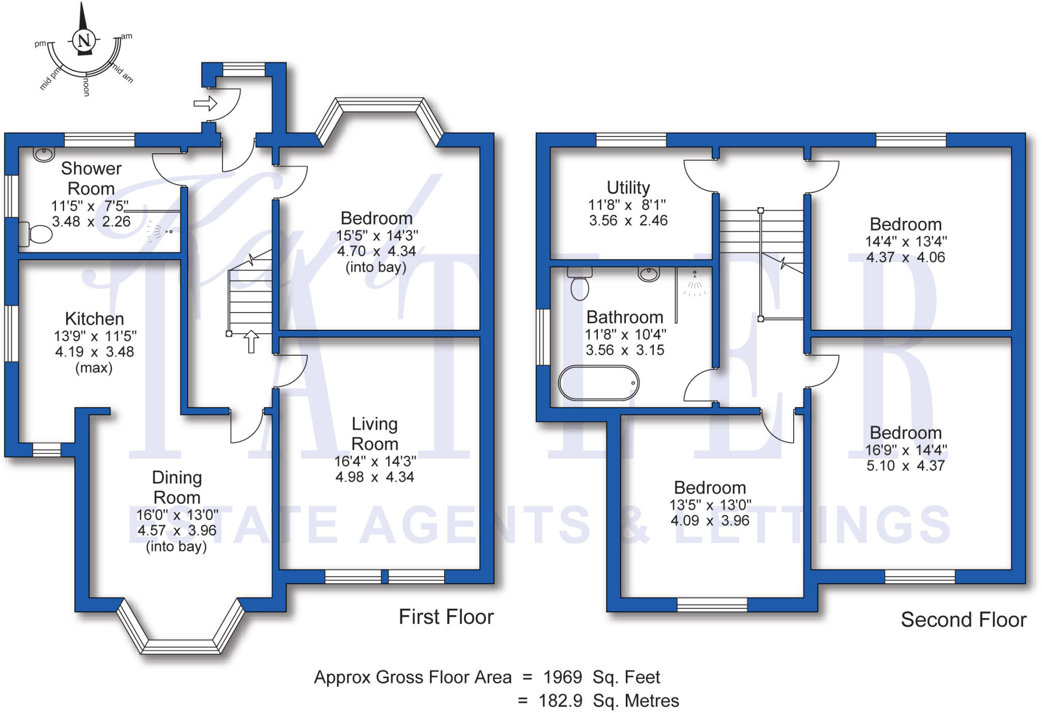
Freehold period maisonette approx. 1,969 sq ft
Set over two generous floors, this elegant period maisonette blends high ceilings and original character with a full, sympathetic renovation. The spacious layout (approx. 1,969 sq ft) provides four double bedrooms plus a versatile fifth room ideal for a home office or playroom, a bright open-plan kitchen/diner with wooden worktops and pantry, and two stylish bathrooms.
The southerly-facing raised patio offers a private outdoor spot for relaxing and entertaining, while a gravelled forecourt and off-street parking for multiple vehicles add everyday convenience. Being freehold and chain-free makes the purchase straightforward for families wanting to move quickly.
Location is a strong asset: a tree-lined street a short walk from Marine Lake, Ashton Park, shops, cafes and several highly regarded schools, including nearby outstanding and grammar options. The flexible, large rooms suit growing families who need adaptable living and study space.
Buyers should note the limited garden/amenity space (patio only) and that the building is of solid brick construction (original insulation not assumed), which can mean higher heating demand unless upgraded. Local crime levels are reported high; prospective buyers should satisfy themselves on local safety measures and security improvements.
4 bedroom maisonette for sale in Victoria Drive, West Kirby, CH48 — £375,000 • 4 bed • 1 bath • 1452 ft²
4 bedroom maisonette for sale in Westbourne Grove, West Kirby, Wirral, Merseyside, CH48 — £375,000 • 4 bed • 2 bath • 1520 ft²
3 bedroom maisonette for sale in Church Road, West Kirby, Wirral, Merseyside, CH48 — £300,000 • 3 bed • 2 bath • 1508 ft²
4 bedroom semi-detached house for sale in Hilbre Road, West Kirby, Wirral, Merseyside, CH48 — £300,000 • 4 bed • 2 bath • 1397 ft²
4 bedroom apartment for sale in Church Road, West Kirby, CH48 — £425,000 • 4 bed • 2 bath • 1867 ft²
3 bedroom maisonette for sale in Clevelands, 103 Meols Drive, Wirral, Merseyside, CH48 — £480,000 • 3 bed • 3 bath • 1656 ft²






















































