Light-filled, low-maintenance home with parking and countryside views.
South-facing top-floor apartment with distant South Downs views
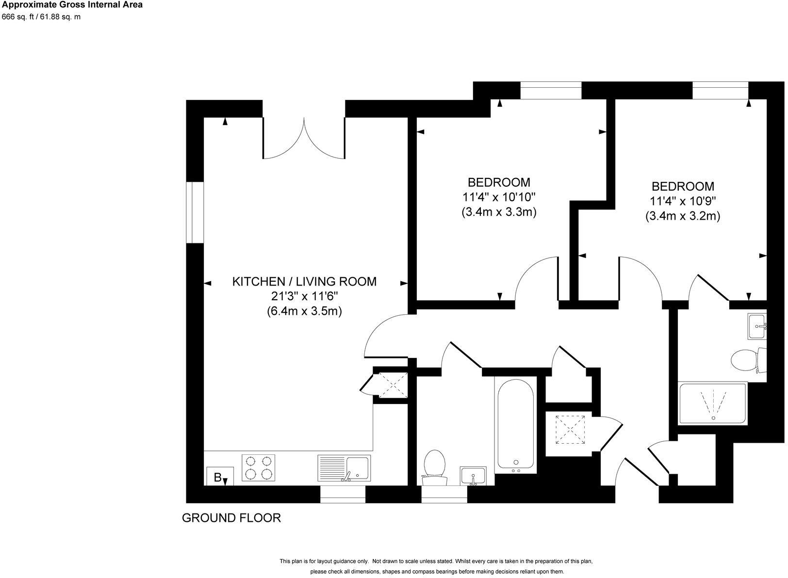
Recently renovated with Herringbone-style Amtico flooring and integrated kitchen
Two double bedrooms; principal bedroom with en-suite shower room
Open-plan living with Juliette balcony and good natural light
Two allocated off-street parking spaces in a compound
Leasehold: 999 years remaining; no ground rent payable
Service charge approx £1,600/year; no private garden
Top-floor position — check access if step-free entry required
This immaculate top-floor, south-facing apartment sits on the popular Wychwood Park development with distant views to the South Downs. The open-plan living room with a Juliette balcony fills the home with light, and the recently renovated finish includes Herringbone-style Amtico flooring and integrated kitchen appliances. Two allocated off-street parking spaces are included behind the compound — a practical benefit for owners and tenants.
The principal bedroom has an en-suite shower room and there’s a second double bedroom plus a second bathroom, so the layout works well for sharers, a small family or a rental couple. The property was constructed in 2019 and has an EPC B rating, mains gas heating with boiler and radiators, fast broadband and excellent mobile signal — all useful for modern daily life and working-from-home arrangements.
This is a leasehold home with 999 years remaining, no ground rent payable and an annual service charge of approximately £1,600. There’s no private garden, and the apartment is a top-floor position within a modest three-storey block, so anyone requiring step-free access should check access arrangements. Council tax is low (Band A) and the area scores as very affluent with very low crime levels.
Well-suited to first-time buyers or buy-to-let investors seeking a low-maintenance, newly renovated property in a peaceful, semi-rural edge-of-town location. The outlook over communal green space, pond and woodland adds a sense of calm and long-range scenery toward the South Downs.
2 bedroom flat for sale in Southdowns Park, Haywards Heath, RH16 — £250,000 • 2 bed • 1 bath • 701 ft²
2 bedroom apartment for sale in Virginia Drive, Haywards Heath, West Sussex, RH16 — £267,500 • 2 bed • 1 bath • 520 ft²
2 bedroom flat for sale in Barton Way, Hassocks, BN6 — £300,000 • 2 bed • 2 bath • 531 ft²
2 bedroom flat for sale in Bowden Way, Haywards Heath, RH16 — £250,000 • 2 bed • 1 bath • 718 ft²
2 bedroom ground floor flat for sale in Orchard Close, BURGESS HILL, RH15 — £240,000 • 2 bed • 2 bath • 636 ft²
2 bedroom ground floor flat for sale in Southdowns Park, Haywards Heath, West Sussex, RH16 — £175,000 • 2 bed • 1 bath • 679 ft²


















































































