**Standout Features:**
- Chain Free sale
- Charming characterful 1900s semi-detached house
- Extended living and dining area with a beautiful kitchen
- Lounge with an open fire and bespoke shelving
- Detached lodge with bedroom and en-suite, perfect for guests or home office
- Spacious driveway with parking for multiple vehicles
- English Heritage-style car barn with power and light
- Generous landscaped garden with zones for relaxation and entertainment
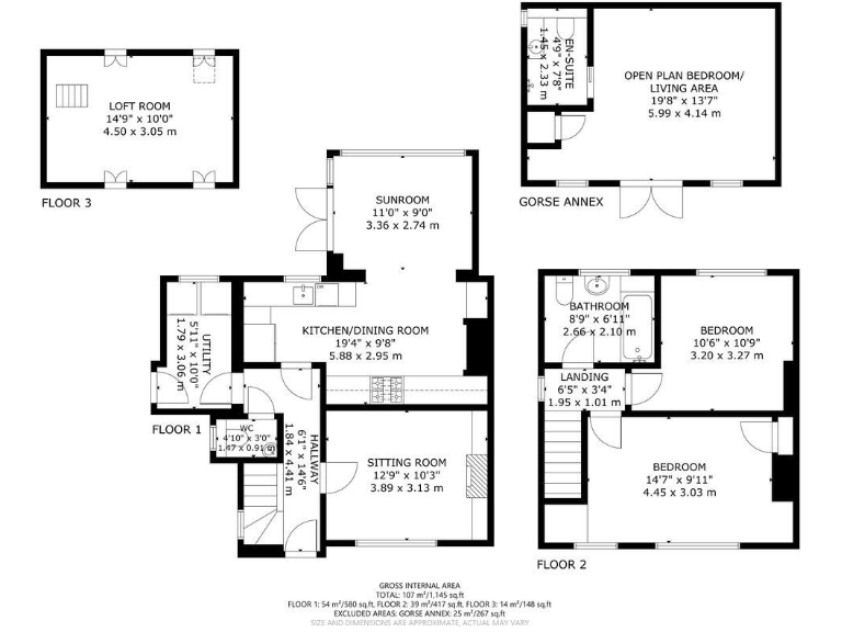
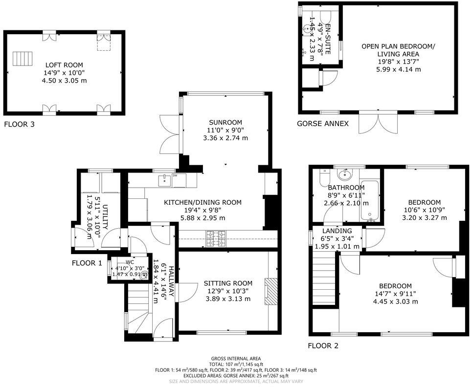
**Property Summary:**
Discover this beautifully presented three-bedroom semi-detached home in the tranquil setting of Cross in Hand, Heathfield. Wrapped in character with its charming 1900s architecture, this property has been thoughtfully updated, seamlessly blending modern comfort with original features. The heart of the home is the stunning kitchen, featuring stylish cabinetry, quartz countertops, and ample storage, which flows into a light-filled dining area perfect for entertaining.
Upstairs, enjoy spacious bedrooms, an attic room ideal for additional storage or office space, and a contemporary bathroom with a "P" shaped bath and shower. Outside, a meticulously landscaped garden offers multiple zones to relax or entertain, anchored by a detached lodge that can serve multiple purposes—ideal for guests, a home office, or potential rental income.
With low crime rates, nearby schools, and easy access to local amenities, this home is perfect for families seeking a blend of peaceful living and accessibility. Don’t miss this unique opportunity; characterful properties like this are rare and in demand.
3 bedroom semi-detached house for sale in School Lane, Ashurst Wood, RH19 — £485,000 • 3 bed • 2 bath • 1057 ft²
2 bedroom semi-detached house for sale in Brickhouse Lane, Newchapel, RH7 — £575,000 • 2 bed • 1 bath • 1071 ft²
3 bedroom semi-detached house for sale in Station Road, Newick, BN8 — £425,000 • 3 bed • 1 bath • 1238 ft²
3 bedroom semi-detached house for sale in Cinder Hill, North Chailey, BN8 — £780,000 • 3 bed • 3 bath • 1948 ft²
4 bedroom chalet for sale in Mark Cross, Crowborough, TN6 — £1,100,000 • 4 bed • 3 bath • 3520 ft²
5 bedroom detached house for sale in Northiam, East Sussex, TN31 — £1,300,000 • 5 bed • 4 bath • 3003 ft²














































































































































































































