Larger-than-average garden and flexible living ideal for family life and home working.
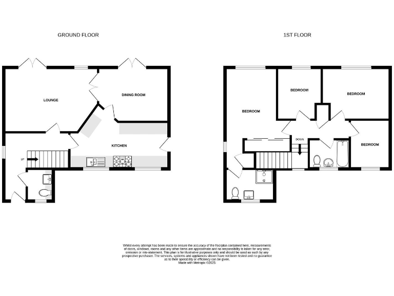
- Four-bedroom detached house with converted garage office and utility
- Large southerly rear garden and patio, good for families
- Spacious kitchen with integrated appliances and seven-ring gas hob
- Principal bedroom with built-in wardrobes and refitted en-suite
- Modern family bathroom and ground-floor cloakroom, stylish fittings
- Off-street driveway parking and low-maintenance modern brick exterior
- Overall internal size modest at approx 1,035 sq ft
- Medium flood risk; local area has mixed socio-economic profile
Set on a larger-than-average plot in a quiet development, this four-bedroom detached house offers practical family living with usable outdoor space and flexible accommodation. The ground floor features a large lounge and separate dining room, plus a substantial kitchen that benefits from integrated appliances and good natural light. An intelligently converted garage provides a home office and utility room — useful for remote working or storage.
Upstairs the principal bedroom includes built-in wardrobes and a refitted en‑suite, while the family bathroom is also modern and well appointed. Gas central heating, double glazing and recent fittings reduce immediate maintenance needs. Off-street parking and a southerly rear garden with patio and lawn are strong lifestyle assets for families and entertaining.
Practical points to note: the overall internal size is relatively modest at about 1,035 sq ft, and the location carries a medium flood risk. Local schooling is mixed and the wider area has social-rental characteristics, which may influence long-term resale for some buyers. Viewing is strongly recommended to appreciate the garden, layout and converted garage space in person.
4 bedroom detached house for sale in Hulham Vale, Exmouth, EX8 4QB, EX8 — £675,000 • 4 bed • 3 bath • 1528 ft²
4 bedroom detached house for sale in Canterbury Way, Exmouth, EX8 — £650,000 • 4 bed • 2 bath • 1744 ft²
4 bedroom detached house for sale in Belle Vue Road, Exmouth, EX8 3DP, EX8 — £750,000 • 4 bed • 1 bath • 1782 ft²
4 bedroom detached house for sale in Betjeman Drive, Exmouth, EX8 5ST, EX8 — £435,000 • 4 bed • 2 bath • 1276 ft²
4 bedroom detached house for sale in Avondale Road, Exmouth, EX8 — £695,000 • 4 bed • 2 bath • 1054 ft²
4 bedroom detached house for sale in Coleridge Close, Exmouth, EX8 — £490,000 • 4 bed • 3 bath • 1586 ft²






































































































