Bright family home with garage and sunny garden near Durham.
South-facing rear garden with paved seating and raised patio
Open-plan kitchen/dining/living with French doors to garden
Driveway plus single garage for secure parking and storage
Master bedroom with recently fitted en-suite and ample storage
Built 2007–2011; double glazing and mains gas central heating
EPC rating currently TBC — confirm before exchange
Tenure unspecified — buyers should verify ownership terms
Located in an area of high deprivation; local schools mixed ratings
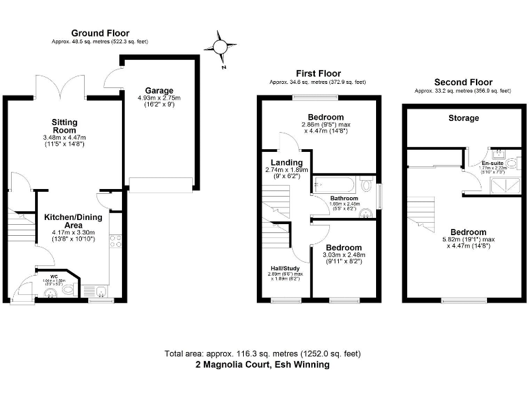
A bright, three-bedroom semi-detached townhouse arranged over three floors, offering flexible family living in Esh Winning. The open-plan kitchen/dining/living area with French doors opens onto a south-facing garden, creating a sunny everyday hub for family time and entertaining. The property includes a driveway and single garage for secure parking and storage.
Upstairs you’ll find two well-proportioned bedrooms and a family bathroom, with the master bedroom on the top floor benefiting from a recently fitted en-suite and large storage. The house was constructed between 2007–2011 and has double glazing and mains gas central heating via a boiler and radiators, so it is functionally modern and well insulated for its age.
Notable practical points to be aware of: the tenure is not specified and the EPC rating is TBC, so buyers should confirm these before committing. The plot is relatively small and some room sizes are compact, so families wanting extensive outdoor space or very large internal rooms should check layouts in person. Local area indicators show higher levels of deprivation and mixed school inspection outcomes nearby, which may affect longer-term schooling choices and community services.
Overall this house suits buyers seeking a modern, low-maintenance family home or an owner-occupied investment in a small town fringe location. It offers immediate liveability with scope to personalise the interior, while parking, garage and a south-facing garden remain practical strengths.
3 bedroom end of terrace house for sale in Castle Field, Esh Winning, Durham, County Durham, DH7 — £160,000 • 3 bed • 2 bath • 1082 ft²
4 bedroom detached house for sale in Hamilton Close, Esh Winning, Durham, County Durham, DH7 — £300,000 • 4 bed • 3 bath
3 bedroom semi-detached house for sale in Green Court, Esh, Durham, DH7 — £250,000 • 3 bed • 1 bath • 1084 ft²
3 bedroom semi-detached house for sale in The Chequers, Consett, DH8 — £159,950 • 3 bed • 2 bath • 754 ft²
3 bedroom semi-detached house for sale in Birch Place, Esh Winning, Durham, DH7 — £149,950 • 3 bed • 1 bath • 915 ft²
3 bedroom semi-detached house for sale in Little Burn Way, Pelton Fell, Chester Le Street, Durham, DH2 — £185,000 • 3 bed • 2 bath • 969 ft²






























































































