Spacious yard and workshops ideal for investor or occupier seeking refurbishment potential.
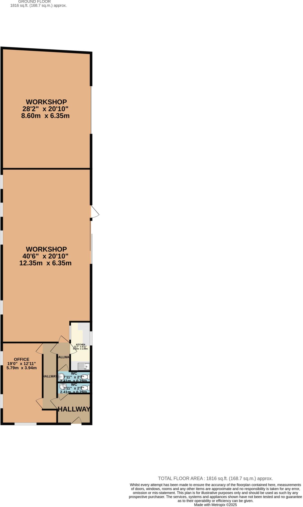
Extremely large commercial site with workshops and offices
Large secure yard and ample off-street parking
Currently used for manufacturing high-speed doors and cold stores
Requires modernization: flat roof and dated workshop areas
Low internal ceiling heights in parts
EPC D; very slow broadband on site
Lease details ambiguous; 55 years remaining on lease noted
Mortgage lenders may refuse due to limited lease term
A rare, spacious commercial site in Stallingborough Industrial Estate offering versatile industrial accommodation and a large secure yard. The buildings include offices, staff facilities, two workshops and extensive external parking, currently used for manufacturing high-speed doors and cold stores. The property needs modernization: flat roof, low ceilings in parts and dated workshop areas present clear scope for refurbishment or conversion to other commercial uses.
Important legal and funding matters need confirming before purchase. The listing references both leasehold use and a freehold tenure; there is a 55-year lease term noted and a vendor no onward chain. Mortgage lenders may refuse lending against the short lease term, so solicitors should verify title and covenant details.
Practical positives include ample vehicle access, off-street secure compound parking and an established commercial neighbourhood. EPC rating D and very slow broadband are factual constraints. This site will suit an investor or occupier wanting a large, adaptable industrial footprint to refurbish or repurpose in a low-competition area.
Commercial property for sale in Kiln Lane Industrial Estate, Europa Lane, Stallingborough, DN41 — £20,000 • 1 bed • 1 bath • 680 ft²
Office for sale in Ibwest House, Railway Street, Grimsby, North East Lincolnshire, DN32 — £125,000 • 1 bed • 1 bath • 1848 ft²
Light industrial facility for sale in Armstrong Street, West Marsh Industrial Estate, Grimsby, North East Lincolnshire, DN31 — £375,000 • 1 bed • 1 bath • 7621 ft²
Light industrial facility for sale in Units 1,2,3,4 & 6 Newchase House, Annesley Street, Grimsby, North East Lincolnshire, DN31 — £99,500 • 1 bed • 1 bath • 943 ft²
Industrial development for sale in 223 - 225 Cleethorpe Road, Grimsby, 223 - 225 Cleethorpe Road, Grimsby, DN31 3BE, DN31 — £195,000 • 1 bed • 1 bath • 5609 ft²
Industrial development for sale in Wilton Road, Industrial Estate, Humberston, Wilton Road, Humberston, Grimsby, DN36 4AW, DN36 — £395,000 • 1 bed • 1 bath • 3515 ft²






