**Standout Features:**
- Immaculately presented semi-detached home
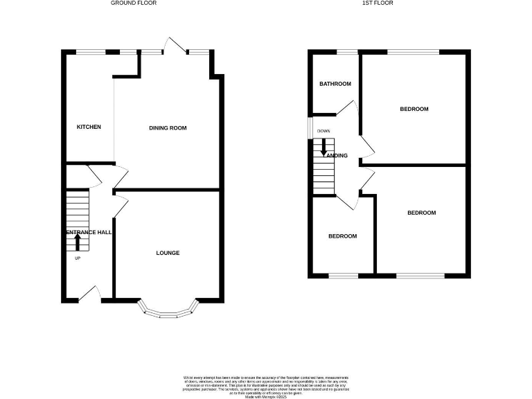
- Three bedrooms, including two doubles
- Stylish bay fronted lounge with fireplace
- Spacious open plan kitchen/dining area
- Convenient off-road parking at the rear
- Close proximity to local amenities and the seafront
**Summary:**
Discover this beautifully refurbished semi-detached house in the desirable area of Cleethorpes, ideal for families and first-time buyers alike. The home features an inviting entrance leading to a bright bay-fronted lounge, perfect for relaxation or entertaining. The modern open-plan kitchen/dining room is tastefully designed and provides direct access to a good-sized rear garden, enhancing your outdoor living experience. The first floor accommodates three well-sized bedrooms, offering plenty of space for a growing family, complemented by a family bathroom.
Situated just off Grimsby Road, this property enjoys close proximity to local amenities, schools with outstanding ratings, and easy access to the stunning seafront via a convenient pathway. The gated driveway at the rear adds practical parking solutions, making this home a smart choice for those seeking both comfort and convenience. Don’t miss out on the opportunity to own this delightful property in a vibrant community—schedule your viewing today!
3 bedroom semi-detached house for sale in Suggitts Lane, Cleethorpes, DN35 — £159,950 • 3 bed • 1 bath • 834 ft²
3 bedroom semi-detached house for sale in Grimsby Road, Cleethorpes, N.E. Lincs, DN35 7LH, DN35 — £220,000 • 3 bed • 1 bath • 894 ft²
3 bedroom semi-detached house for sale in Queens Parade, Cleethorpes, DN35 — £275,000 • 3 bed • 1 bath • 922 ft²
3 bedroom semi-detached house for sale in Parris Place, Cleethorpes, N E Lincs, DN35 — £229,950 • 3 bed • 1 bath • 1275 ft²
3 bedroom end of terrace house for sale in Campden Crescent, Cleethorpes, DN35 — £159,950 • 3 bed • 1 bath • 796 ft²
3 bedroom semi-detached house for sale in Woodsley Avenue, Cleethorpes, Grimsby, DN37 — £194,950 • 3 bed • 1 bath • 758 ft²






















































































