Renovated period home with private garden and long lease.
Chain-free ground-floor maisonette, approx. 577 sq ft
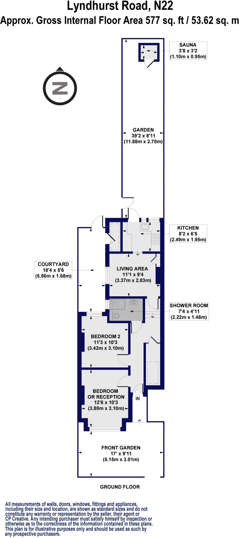
A freshly renovated ground-floor Victorian maisonette, offering about 577 sq ft of well-presented living space arranged as one or two bedrooms. Period touches — cast-iron fireplaces, decorative mouldings and bay windows — sit alongside a new kitchen, modern bathroom and oak flooring for an attractive blend of character and contemporary finish.
The property opens to a bright living/dining area that leads directly to a landscaped rear garden with patio; a sauna is available by separate negotiation. Newly fitted double-glazed windows and a gas boiler with radiators provide improved thermal comfort, and the EPC currently sits in band C (71).
Practical positives include a long lease (approx. 160 years), chain-free sale and on-street resident and visitor permit parking. The maisonette is well placed for transport links at Wood Green, Bounds Green and Bowes Park, local schools rated Good or Outstanding, and nearby green spaces, suiting first-time buyers, professionals or small families.
Notable matters: the building is of solid brick Victorian construction and external walls are assumed to have no added insulation, which may affect long-term energy performance. Parking is on-street only, and the sauna is not included in the sale price. Council Tax Band C applies and the property is leasehold.
2 bedroom ground floor flat for sale in Lyndhurst Road, London, N22 — £400,000 • 2 bed • 1 bath • 577 ft²
2 bedroom apartment for sale in Lyndhurst Road, London, N22 — £375,000 • 2 bed • 1 bath • 650 ft²
2 bedroom maisonette for sale in Lyndhurst Road, London, N22 — £460,000 • 2 bed • 1 bath • 797 ft²
2 bedroom maisonette for sale in Trinity Road, Bowes Park, London, N22 — £595,000 • 2 bed • 1 bath • 1057 ft²
2 bedroom maisonette for sale in Finsbury Road, Wood Green, London, N22 — £400,000 • 2 bed • 1 bath • 659 ft²
3 bedroom apartment for sale in Lyndhurst Road, London, N22 — £495,000 • 3 bed • 1 bath • 794 ft²


































































































