Buy-to-let with upside in rental income for active investors.
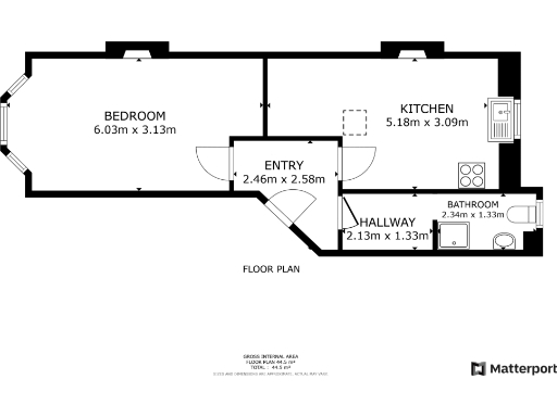
- Freehold one-bedroom flat in Victorian tenement, approx 452 sq ft
- Long-term tenant in situ; tenant intends to remain
- Current gross income £4,200 pa; market potential ~£11,400 pa
- Period features: high ceilings, bay windows, strong natural light
- Kitchen dated and compact; requires refurbishment to boost rent
- Located in G11 with excellent transport and local amenities
- Area classified as very deprived—affects management and tenant profile
- Buyers Premium applies to purchase
A freehold one-bedroom flat in a traditional Victorian tenement on Thornwood Avenue, offered with a long-term tenant in situ. The property occupies around 452 sq ft with high ceilings, period bay windows and natural light—features that appeal to rental-market demand and period-property buyers. Current gross rent is £4,200 pa with independent advice suggesting a re-let market rent nearer £11,400 pa, so there is clear uplift for a hands-on investor.
The accommodation is compact and practical: one bedroom, a three-piece bathroom and a small kitchen that is dated and would benefit from refurbishment. The building appears well maintained externally, but the flat’s interior shows typical period-asset wear and will likely need cosmetic updating or a targeted program of works to achieve the higher rental figure.
Important practical points for buyers: the property sits in an area classified as very deprived which affects tenant profile and potential management needs, and a Buyers Premium will apply to the sale. This is a buy-to-let opportunity best suited to investors or developers comfortable with tenant-in-situ transactions, short-term refurbishment and active portfolio management to realise uplift.
1 bedroom flat for sale in Ashvale Crescent, Glasgow, G21 — £65,000 • 1 bed • 1 bath • 635 ft²
2 bedroom flat for sale in Glen Isla East, Kilbride, Glasgow, G74 — £78,000 • 2 bed • 1 bath • 681 ft²
2 bedroom flat for sale in Pleasance Street, Glasgow, G43 — £190,000 • 2 bed • 1 bath • 818 ft²
1 bedroom flat for sale in Holmhead Crescent, Glasgow, G44 — £90,000 • 1 bed • 1 bath • 484 ft²
2 bedroom flat for sale in Boydstone Road, Glasgow, G46 — £89,500 • 2 bed • 1 bath • 732 ft²
3 bedroom flat for sale in Kingsbridge Drive, Glasgow, G44 — £107,500 • 3 bed • 1 bath • 764 ft²






















































