Ready-to-build seven-home scheme on a large freehold edge-of-town plot.
Planning permission for seven dwellings granted Sept 2024 (ref 23/00297/FUL)
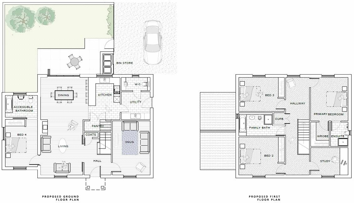
This very large freehold site on the edge of Castle Cary benefits from full planning permission granted in September 2024 for seven dwellings: four substantial detached four-bedroom homes (c.227 sqm GIA each) and a terrace of three three-bedroom houses (c.117 sqm GIA each). The consented scheme includes access from Yeabsleys Way, landscaping and parking, presenting a near-term delivery opportunity for a developer or investor seeking a boutique small-scheme in a sought-after Somerset town.
The location is a strong selling point: Castle Cary station offers direct trains to London Paddington, the A303 is readily accessible and higher‑end local attractions such as The Newt are nearby. The surrounding area is very affluent with strong broadband and mobile connectivity, a mix of state and independent schools within easy reach, and convenient local shops and amenities for future occupants.
Practical considerations are set out clearly: mains water and drainage run in adjacent roads, but purchasers must confirm service connections independently. Overhead electricity lines cross the land and will require design accommodation. Viewings should be undertaken with care due to site safety, and any buyer should satisfy themselves on technical matters and build costs prior to exchange.
Overall this is a ready-to-build development plot with planning in place and clear market appeal for family housing in a desirable rural‑edge location. It suits builders, small house‑builders or investors able to progress the consent quickly to capitalise on local demand.
Residential development for sale in Building Plot, Victoria Park, Castle Cary, BA7 — £30,000 • 1 bed • 1 bath • 2730 ft²
Plot for sale in Development Site For 5 Houses, North Cadbury, BA22 — £550,000 • 1 bed • 1 bath • 8650 ft²
Plot for sale in Ansford Hill, Castle Cary, BA7 — £450,000 • 4 bed • 5 bath
Plot for sale in Land adjacent to Millway House, With outline planning consent, Lydford-on-Fosse, Somerton, TA11 — £150,000 • 1 bed • 1 bath
Plot for sale in Churchfield, Wincanton, BA9 — £250,000 • 1 bed • 1 bath • 873 ft²
Plot for sale in Adjoining Old School Lane, Catcott, Bridgwater, Somerset, TA7 — £400,000 • 1 bed • 1 bath


































