Spacious open-plan living with garden access, en suite and convenient garage parking.
Double integral garage and adjoining utility area
This Colville detached house on Morris Drive offers a practical, family-focused layout across two floors. The ground floor centres on a generous open-plan kitchen with breakfast and family areas opening via French doors to a private, fully turfed garden, plus a separate dining room and spacious lounge for daily life and entertaining.
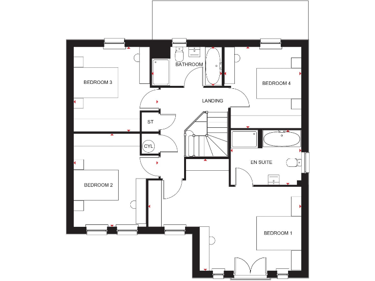
Upstairs provides four double bedrooms, including an elegant main suite with Juliet balcony and en suite, together with a modern family bathroom and good built-in storage throughout. A double integral garage and adjoining utility area add useful day-to-day convenience.
The property is a new-build with contemporary finishes and sizable room proportions, well suited to families seeking modern living near green space and golf facilities. Be aware the tenure is not specified and the surrounding postcode is noted as a very deprived area, which may influence long-term value perceptions and local services. Mobile signal is average despite fast broadband.
Overall, this is a straightforward, comfortable family house with strong practical features — open-plan living, outdoor space, and garage — that will suit buyers prioritising convenience and contemporary layout, while those sensitive to neighbourhood indicators or tenure certainty should investigate further.
4 bedroom detached house for sale in Morris Drive,
Holytown,
Motherwell,
South Lanarkshire,
ML1 5UU, ML1 — £474,995 • 4 bed • 1 bath • 1452 ft²
4 bedroom detached house for sale in Strathaven Road, Hamilton,
South Lanarkshire,
ML3 7UX, ML3 — £459,995 • 4 bed • 1 bath • 1457 ft²
4 bedroom detached house for sale in Morris Drive,
Holytown,
Motherwell,
South Lanarkshire,
ML1 5UU, ML1 — £369,995 • 4 bed • 1 bath • 1203 ft²
4 bedroom detached house for sale in Morris Drive,
Holytown,
Motherwell,
South Lanarkshire,
ML1 5UU, ML1 — £367,995 • 4 bed • 1 bath • 1165 ft²
4 bedroom detached house for sale in Carmuirs Drive,
Newarthill,
Motherwell,
ML1 5US, ML1 — £331,995 • 4 bed • 1 bath • 1037 ft²
4 bedroom detached house for sale in Carmuirs Drive,
Newarthill,
Motherwell,
ML1 5US, ML1 — £333,995 • 4 bed • 1 bath • 1037 ft²


















































