Spacious modern family home with pool and excellent transport links.
Over 4,400 sq ft of living space across multiple reception rooms and bedrooms
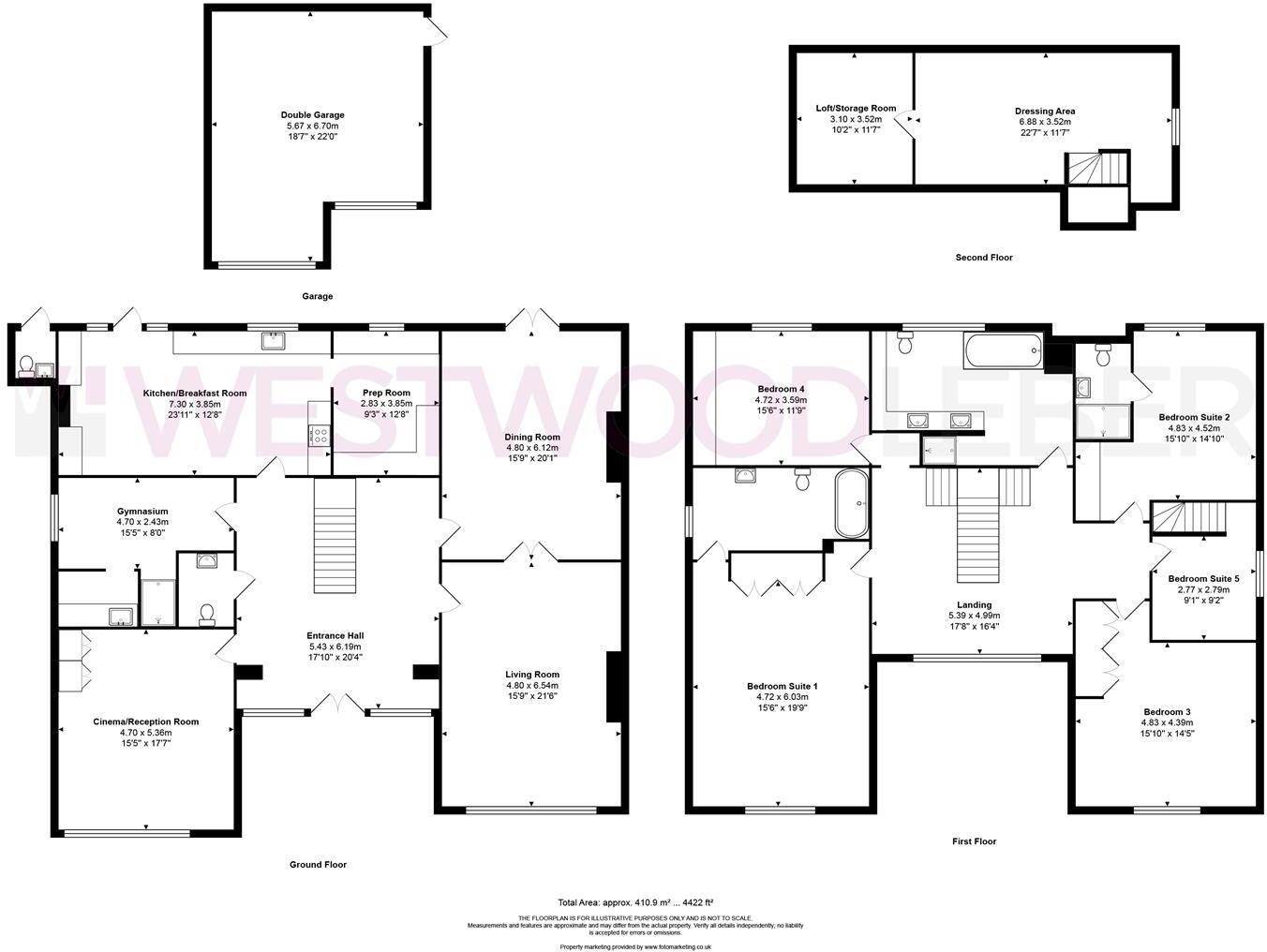
Set on a generous plot approaching a quarter acre, this newly renovated five-bedroom detached house provides over 4,400 sq ft of family-focused living space. The home is arranged over multiple levels with three reception rooms, a large kitchen/breakfast room plus utility, a gym with shower, and a versatile mezzanine bedroom ideal for a games room or snug. The principal and second bedrooms both benefit from en-suites.
Outside is a beautifully landscaped garden with decked entertaining space and a heated swimming pool, accompanied by a dedicated plant room and outdoor WC. A substantial block-paved driveway leads to a double garage with power and lighting; Broxbourne station, highly regarded schools and local amenities are within easy reach.
The property has been tastefully updated throughout to a high standard and is offered chain free on a freehold tenure. Practical details: mains gas central heating with boiler and radiators, double glazing installed before 2002 and cavity wall insulation assumed. This house will suit families seeking space, modern finishes and easy commuter access.
Buyers should note a few material considerations: the heated pool and its plant require ongoing maintenance and running costs, the glazing dates to before 2002 and may not meet newer efficiency standards, and council tax is described as quite expensive. These are factual points to weigh against the significant accommodation and plot size on offer.
4 bedroom detached house for sale in The Grove, Brookmans Park, Hertfordshire, AL9 — £1,799,950 • 4 bed • 3 bath • 3235 ft²
5 bedroom detached house for sale in Yewlands, Hoddesdon, EN11 — £1,600,000 • 5 bed • 4 bath • 4100 ft²
6 bedroom detached house for sale in Baas Hill, Broxbourne, EN10 — £1,850,000 • 6 bed • 4 bath • 4000 ft²
5 bedroom detached house for sale in Springfields, Broxbourne, EN10 — £1,250,000 • 5 bed • 4 bath • 3000 ft²
7 bedroom detached house for sale in Baas Hill Close, Broxbourne, Hertfordshire, EN10 — £1,600,000 • 7 bed • 4 bath • 3340 ft²
5 bedroom detached house for sale in Sutton Close, Broxbourne, EN10 — £1,050,000 • 5 bed • 2 bath • 2249 ft²






























































































































































































































