**Standout Features:**
- Prime corner plot location in a semi-rural setting
- Spacious modern ranch-style detached bungalow
- High-quality log-burning stove and ample living spaces
- 4 double bedrooms, including a master suite with dressing room and wet room
- Double garage with electric doors
- Large, level gardens perfect for family activities
- Excellent commuter links and proximity to Kinross High School
**Potential Concerns:**
- Council tax band is quite expensive
- Area classified as very deprived
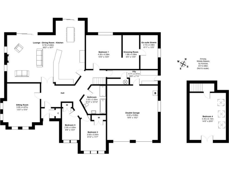
Discover this stunning detached bungalow, nestled in a sought-after semi-rural location just outside Kinross. This spacious property boasts a unique single-story design, featuring a welcoming lounge with a cozy log-burning stove, a separate sitting room, and a dining area with garden access. With four generous double bedrooms, including a master suite complete with a dressing room and wet room, this home provides ample comfort for family living.
Enjoy the convenience of a double garage with electric doors and beautifully landscaped gardens that invite outdoor activities. Ideal for families, it resides within the catchment area for Kinross High School, ensuring excellent education opportunities. While the council tax is on the higher side and the local area classified as very deprived, the potential for growth and future development makes this property a remarkable investment. Don’t miss your chance to call this peaceful haven home; schedule a visit today!
3 bedroom detached bungalow for sale in Lathro Park, Kinross, KY13 — £379,500 • 3 bed • 2 bath
3 bedroom bungalow for sale in 8 Gallowhill Gardens, Kinross, KY13 — £320,000 • 3 bed • 1 bath • 1199 ft²
5 bedroom detached bungalow for sale in Kourion, 1 Gallowhill Gardens, Kinross, KY13 — £460,000 • 5 bed • 3 bath • 1905 ft²
4 bedroom detached bungalow for sale in 2 Dawson's Court, Balado, Kinross, KY13 — £470,000 • 4 bed • 3 bath • 919 ft²
3 bedroom bungalow for sale in Ramsay Lane, Kincardine, Alloa, Fife, FK10 — £285,000 • 3 bed • 2 bath • 1456 ft²
5 bedroom detached house for sale in 2 Boreland Steading, Cleish, KY13 — £699,000 • 5 bed • 3 bath • 2371 ft²


























































































