Move-in ready family living with garden and garage parking.
Triple-glazed windows and new roof; recent major exterior upgrades
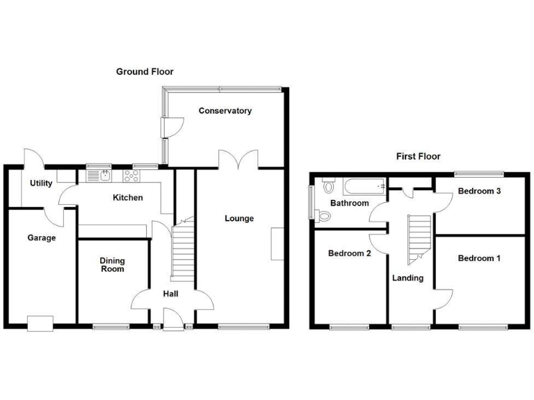
Set on a generous corner plot in sought-after Norden, this recently refreshed three-bedroom detached house suits growing families who value space and low local crime. The ground floor provides two reception rooms plus a conservatory, creating flexible living and play areas that flow to a lawned rear garden and paved patio. A wide block-paved driveway and single integral garage add substantial parking and storage.
The house has been significantly upgraded in recent years: a new roof, rendered elevations to three sides, triple-glazed windows, and stylish Amtico herringbone flooring on the ground floor. The kitchen links through to a useful utility, and the loft is partially boarded for extra storage. The plot also offers scope for extensions subject to necessary planning consent, appealing to buyers wanting longer-term growth potential.
Practical details to note: the property is leasehold (long lease remaining) with a small ground rent and an EPC rating of D. There is a single family bathroom only, and council tax is band D. These factual points may affect running costs and family planning but are balanced by the home’s modern updates and low-crime, well-served neighbourhood.
Overall, this mid-sized detached home presents a comfortable, contemporary base in a very affluent, family-friendly area with good schools nearby. It will suit purchasers seeking move-in ready accommodation with scope to personalise or extend over time.
3 bedroom detached house for sale in Highfield Road, Rochdale, Greater Manchester, OL11 — £350,000 • 3 bed • 2 bath • 1410 ft²
4 bedroom detached house for sale in Newhouse Crescent, Norden, Rochdale, OL11 — £375,000 • 4 bed • 2 bath • 1470 ft²
3 bedroom detached house for sale in Clay Lane, Norden, Rochdale, OL11 — £440,000 • 3 bed • 2 bath • 1299 ft²
3 bedroom detached house for sale in Thornlea Drive, Norden, OL12 — £360,000 • 3 bed • 2 bath • 808 ft²
3 bedroom detached house for sale in Carfax Fold, Norden, Rochdale, OL12 — £290,000 • 3 bed • 1 bath • 880 ft²
5 bedroom detached house for sale in Four Lanes Way, Norden, Rochdale, Greater Manchester, OL11 — £400,000 • 5 bed • 3 bath • 1356 ft²


















































































































































