**Standout Features:**
- Spacious detached property with large gardens and water views
- Modern open plan kitchen and dining area with utility room
- Ground floor bedroom and contemporary shower room
- Large upstairs family room with Juliet balcony
- Master bedroom with ensuite and waterfront views
- Double garage with power and lighting
- Fantastic outdoor space, ideal for entertaining
- Chain-free with no onward progress needed
**Potential Concerns:**
- Property sold as seen, requiring personal finishing touches
- Broadband speeds are currently slow
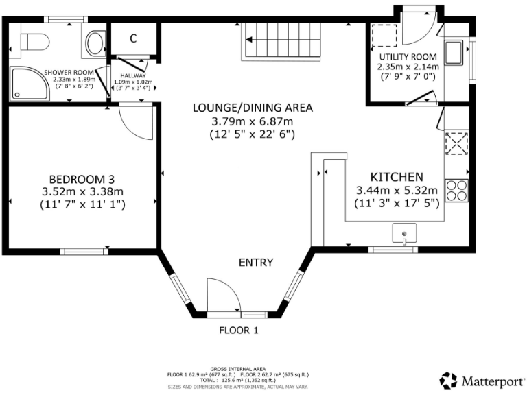
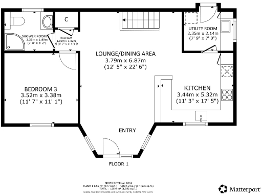
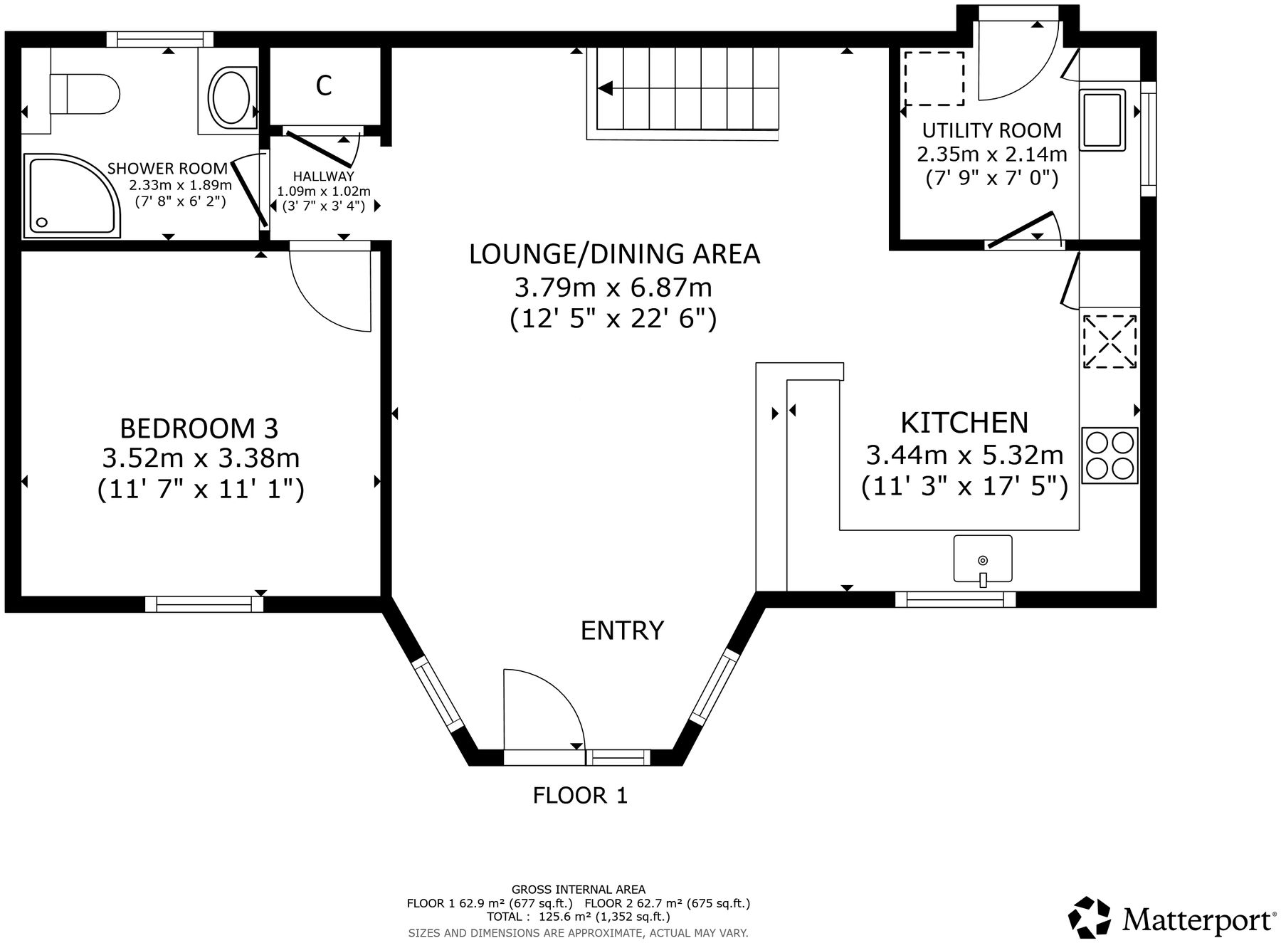
Offering a rare blank canvas, this spacious detached home is perfectly positioned near the scenic shores of Toward Bay, making it ideal for families or those looking for a tranquil lifestyle. With a generous open plan kitchen and dining area accentuated by a modern utility room, this property allows for both stylish entertaining and everyday family living. The ground floor hosts a bright double bedroom with stunning water views and a contemporary shower room.
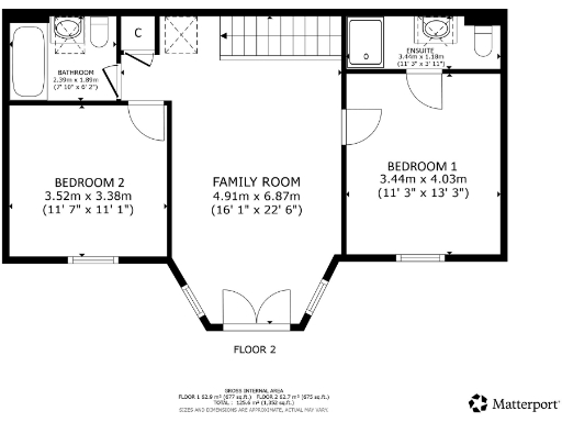
Upstairs, the generous family room, flooded with natural light through French doors and a Juliet balcony, provides a perfect retreat. The luxurious master suite, also with tranquil water views, boasts a sleek ensuite bathroom, while another spacious double bedroom shares access to a modern family bathroom. The double garage adds extra convenience, while the expansive gardens and patio offer ample space for outdoor leisure or entertaining.
Nestled in breathtaking natural surroundings, this property invites you to immerse yourself in coastal charm and activities, including sailing and long coastal walks. With the local amenities of Dunoon just 5 miles away, it balances seclusion with convenience. Given the potential for renovation and personalization, this home won’t last long—seize the opportunity to make it your own today!
3 bedroom detached house for sale in Toward Bay, Toward, Dunoon, PA23 7UA, PA23 — £370,000 • 3 bed • 3 bath • 1188 ft²
3 bedroom detached house for sale in Wave N'sea, Toward, Dunoon, Argyll and Bute, PA23 7UL, PA23 — £415,000 • 3 bed • 3 bath • 1875 ft²
3 bedroom detached house for sale in 5 Laudervale, 73 Bullwood Road, Dunoon, Argyll and Bute, PA23 7QL, PA23 — £285,000 • 3 bed • 3 bath • 1288 ft²
3 bedroom detached house for sale in Harbourside, Inverkip, Inverkip, Inverclyde, PA16 — £580,000 • 3 bed • 2 bath • 1426 ft²
2 bedroom detached bungalow for sale in The Old Ticket Office, Toward, Dunoon, Argyll and Bute, PA23 7UB, PA23 — £325,000 • 2 bed • 1 bath
3 bedroom detached bungalow for sale in Eccles Road, Hunters quay, Dunoon, PA23 — £355,000 • 3 bed • 2 bath • 4193 ft²






























































































































