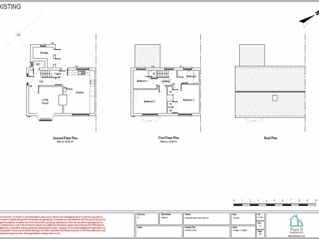
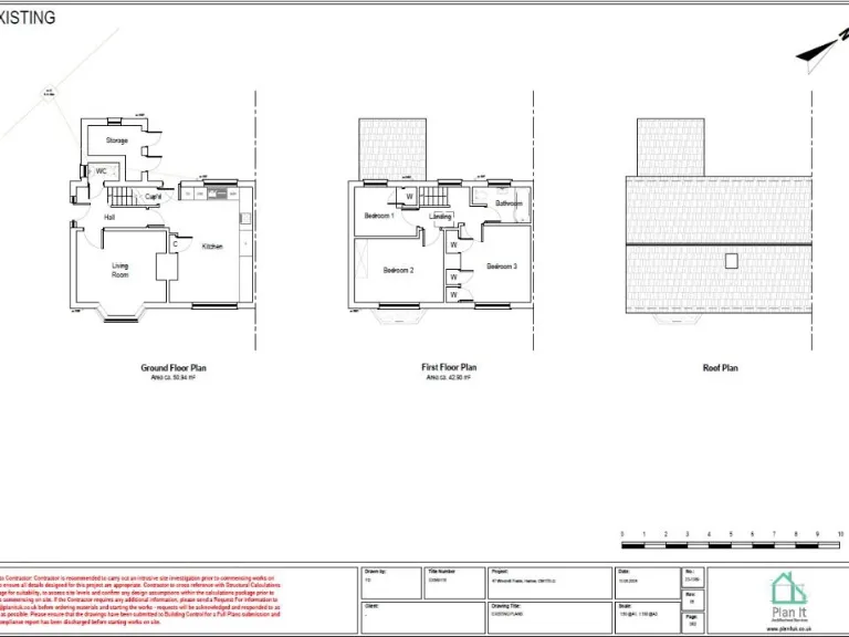
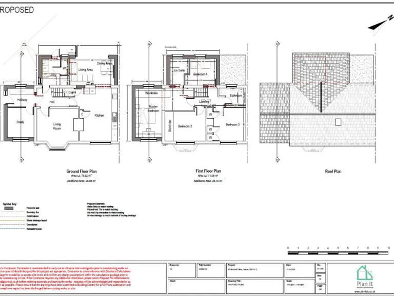
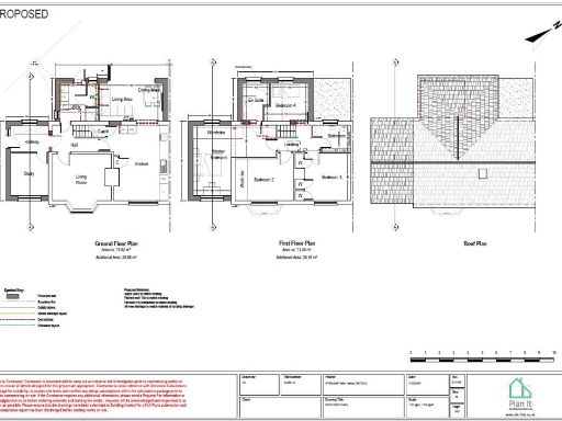
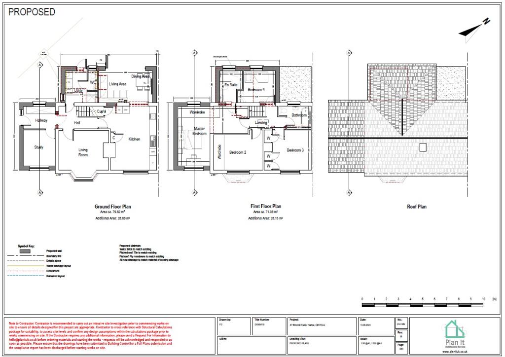
Three bedrooms with open-plan kitchen/diner
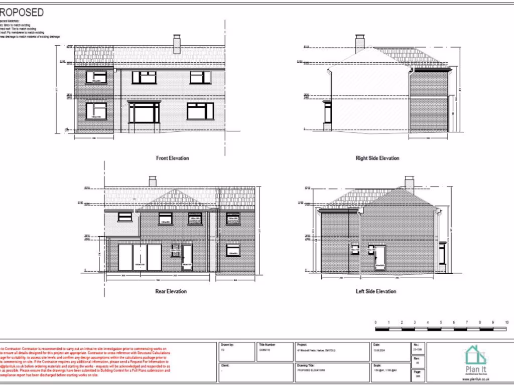
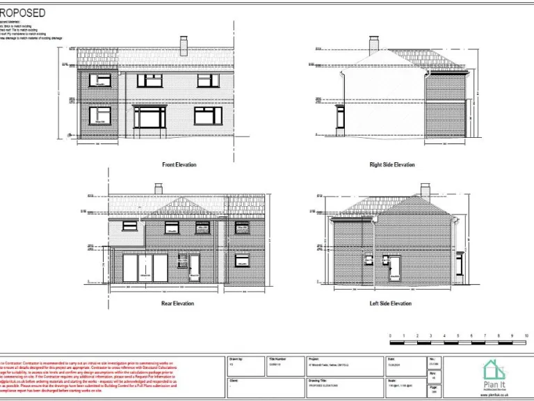
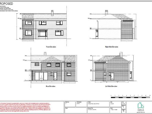
Planning permission granted for side and rear extensions
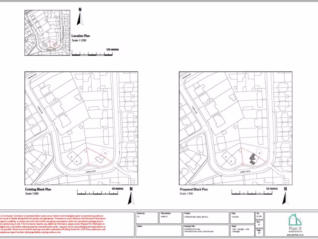
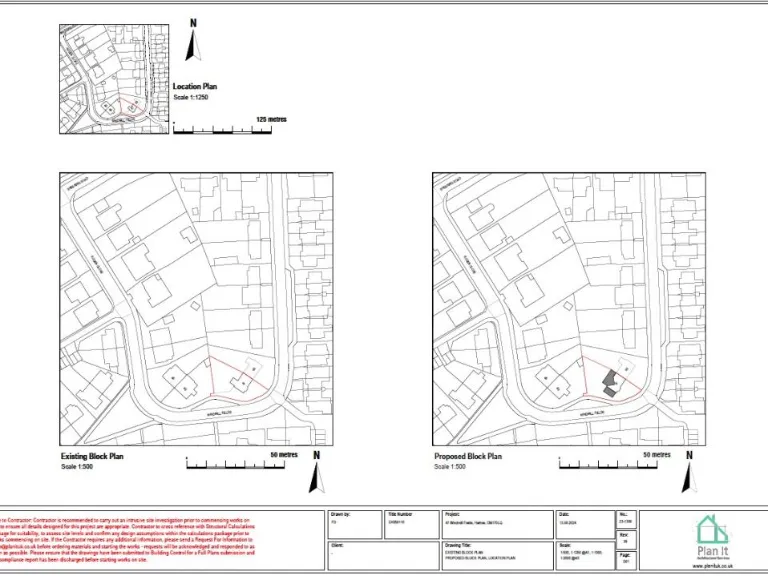
Large corner plot with decent garden and side access
Driveway for multiple vehicles; garage potential (subject to checks)
Walking distance to Harlow Mill station; easy M11/M25 access
Single family bathroom only; one WC downstairs
Cavity walls likely uninsulated; double glazing pre-2002
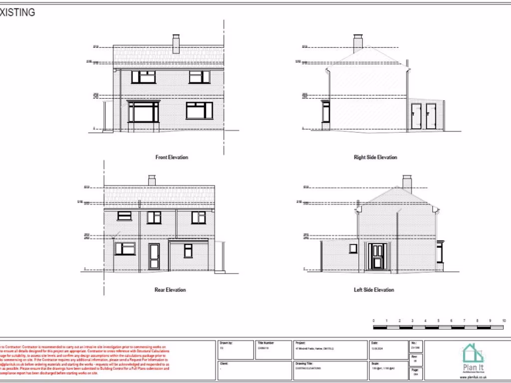
Mid-20th-century build—modernisation and energy upgrades likely
Set on a substantial corner plot in sought-after Old Harlow, this three-bedroom semi-detached house offers immediate living and clear scope to add value. The ground floor has an open-plan kitchen/diner, lounge and cloakroom; upstairs are three bedrooms and a family bathroom. Planning permission has been granted for a double-storey side extension and single/double-storey rear extension, ideal for buyers wanting extra living space or increased resale potential.
Practical benefits include off-street parking for multiple vehicles, convenient walking access to Harlow Mill station and easy links to the M11/M25. The plot provides side access, a lawned garden with patio and an external storage room; there is also garage potential subject to checks.
Truthfully, the house is a mid-20th-century build with cavity walls likely uninsulated and double glazing fitted before 2002, so further energy upgrades may be required. There is a single bathroom and a traditional gas boiler and radiator heating system—suitable but not new. Buyers should arrange a survey and factor in modernization and insulation work if improved efficiency is desired.
This property will suit families or investors seeking a well-located home with development potential in a very affluent area. Early viewing is recommended to appreciate the plot, permissioned extension and transport links that make this a practical long-term proposition.
3 bedroom semi-detached house for sale in The Oxleys, Harlow, CM17 — £580,000 • 3 bed • 2 bath • 1358 ft²
3 bedroom semi-detached house for sale in Essex, Old Harlow, CM17 — £525,000 • 3 bed • 1 bath • 1376 ft²
3 bedroom detached house for sale in Old Road, Old Harlow, Essex, CM17 — £675,000 • 3 bed • 2 bath • 2067 ft²
3 bedroom semi-detached house for sale in St. Johns Avenue, HARLOW, CM17 — £415,000 • 3 bed • 1 bath • 1036 ft²
4 bedroom semi-detached house for sale in Priory Avenue, Old Harlow, CM17 — £650,000 • 4 bed • 3 bath • 1470 ft²
3 bedroom detached house for sale in Millfield, Old Harlow, CM17 — £650,000 • 3 bed • 3 bath • 1041 ft²






























































































