Two double bedrooms, conservatory and garage on a generous plot in Botley, ready to move into..
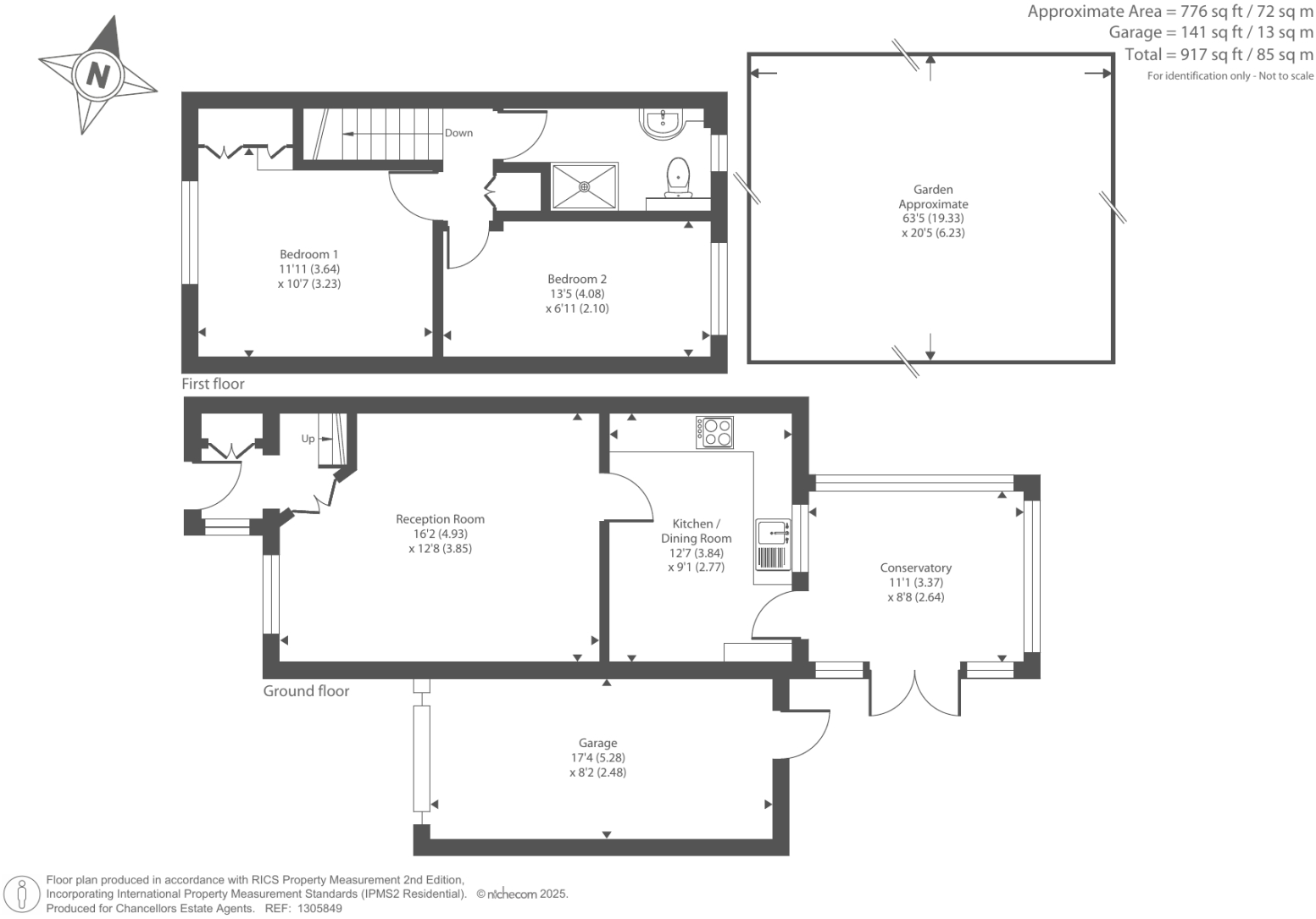
- Linked semi-detached house with private rear garden
- Two double bedrooms; single first-floor shower room
- Conservatory with French doors onto patio and lawn
- Attached 141 sq ft garage plus ample off-street parking
- Circa 776 sq ft: average size; limited space for large families
- Built 1983–1990; double glazing install date unknown
- Mains gas central heating; low local crime and very affluent area
- Excellent transport: near Oxford station, A34 and Park & Ride
A well-presented linked semi-detached home in Botley, offering two double bedrooms across approximately 776 sq ft. The ground floor has a reception room, kitchen/dining area and a bright conservatory that opens onto a private rear garden — useful for family life and entertaining. An attached 141 sq ft garage and generous off-street parking add practical storage and vehicle space.
Accommodation is straightforward and comfortable: two double bedrooms and a contemporary first-floor shower room. Built in the 1980s with double glazing (installation date unknown) and gas central heating to radiators, the house suits buyers seeking a ready-to-move-in family home or a practical rental in a very affluent, low-crime area with excellent transport links to Oxford and beyond.
Considerations: overall size is average (circa 776 sq ft) with a single bathroom, so space may feel limited for larger families. While the home is described as well presented, buyers should check glazing age and general services. The freehold tenure, decent plot and good local schools make this a sensible purchase for couples, small families or investor buyers.
3 bedroom semi-detached house for sale in Cedar Road, Oxford, OX2 — £460,000 • 3 bed • 2 bath • 950 ft²
4 bedroom detached house for sale in Botley, Oxford, OX2 — £600,000 • 4 bed • 2 bath • 1260 ft²
2 bedroom terraced house for sale in Botley, Oxford, OX2 — £375,000 • 2 bed • 1 bath • 763 ft²
3 bedroom semi-detached house for sale in Botley, Oxford, OX2 — £475,000 • 3 bed • 1 bath • 962 ft²
3 bedroom semi-detached house for sale in Sycamore Road, Oxford, OX2 — £465,000 • 3 bed • 1 bath • 1179 ft²
2 bedroom terraced house for sale in Bushy Close, Botley, OX2 — £370,000 • 2 bed • 2 bath • 541 ft²


































































