Light-filled family living with outdoor lounge and EV charging.
Corner position with pleasant field views
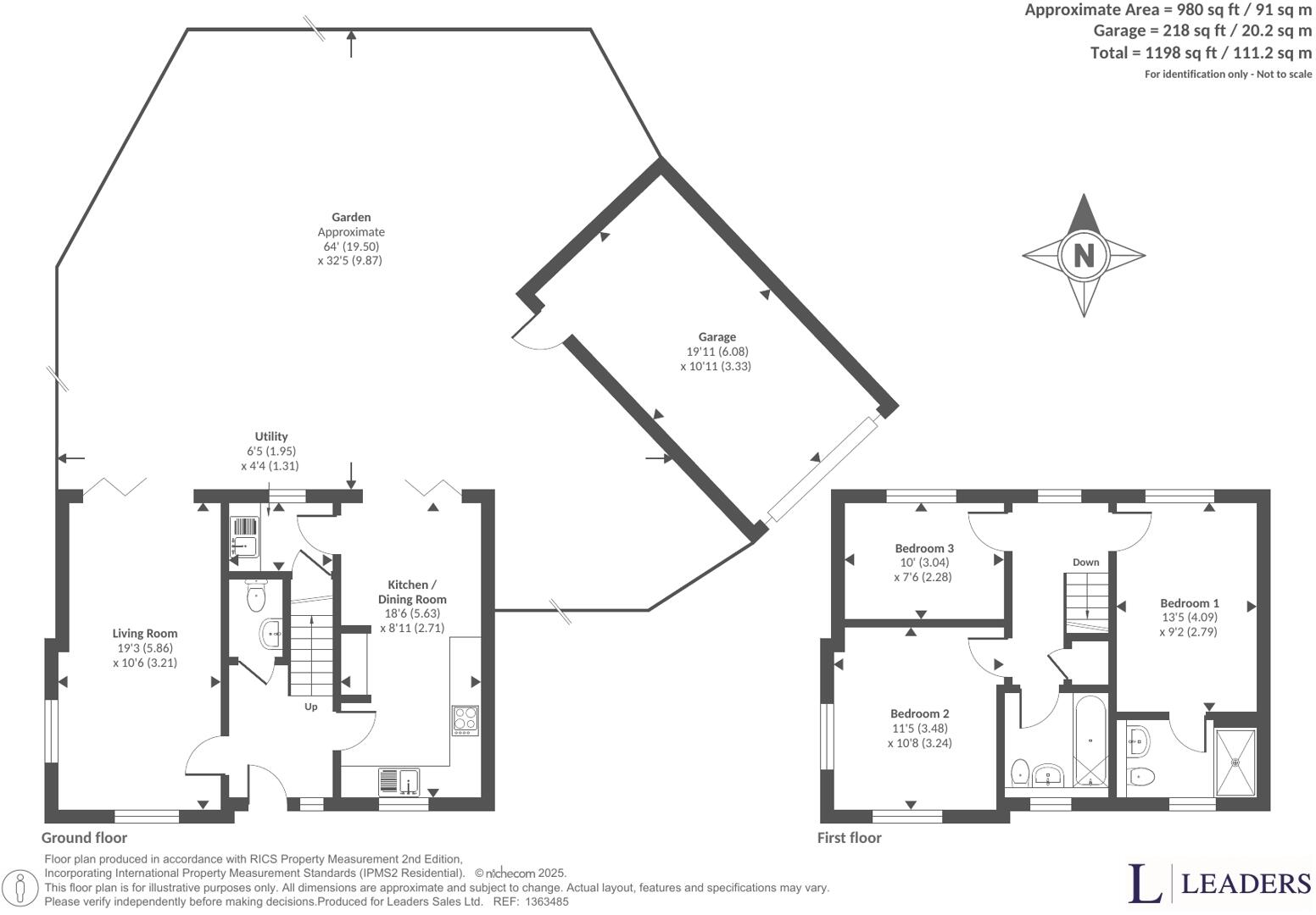
This modern three-bedroom detached house occupies a desirable corner plot in North Emsworth, built in 2019 and still within NHBC warranty. The layout suits family life: a light-filled living room with bi-fold doors to a decked seating area, an outdoor lounge with a wood-burning stove, a separate utility room and a boarded loft offering conversion potential. The garden and driveway are complemented by a detached garage equipped with an EV charging point.
The property is offered as shared ownership: the listed price of £237,500 represents a 50% share of a £475,000 valuation. Buyers should note the minimum cash deposit requirement (£118,750 for a 50% purchase) and the service charge of £553.56 per year. Eligibility criteria apply for the part buy–part rent scheme and buyers must satisfy identity checks and status conditions.
Practical positives include fast broadband, excellent mobile signal, mains gas central heating with boiler and radiators, and easy access to local schools rated Good. The corner position gives pleasant outlooks over adjacent fields. On the downside, some nearby secondary and primary provision have mixed Ofsted outcomes; prospective buyers should check school admissions and suitability. Internal space is average sized overall, and any loft conversion or major alterations would require planning and budget.
This house will suit buyers looking for a modern, low-maintenance family home with outdoor living and EV-ready parking, or investors interested in part-ownership opportunities. Be clear on the shared ownership mechanics and upfront cash required before proceeding.
3 bedroom detached house for sale in West Brook View, Emsworth, Hampshire, PO10 — £500,000 • 3 bed • 2 bath • 1198 ft²
3 bedroom terraced house for sale in Farm Drive, Petersfield, Hampshire, GU31 — £180,000 • 3 bed • 2 bath • 812 ft²
2 bedroom end of terrace house for sale in Leachman Way, Petersfield, Hampshire, GU31 — £220,000 • 2 bed • 1 bath • 872 ft²
2 bedroom end of terrace house for sale in Leachman Way, Petersfield, Hampshire, GU31 — £400,000 • 2 bed • 1 bath • 787 ft²
3 bedroom semi-detached house for sale in Gleave Close, Southsea, PO4 — £197,500 • 3 bed • 1 bath • 1041 ft²
3 bedroom end of terrace house for sale in Grebe Close, Wecock Farm, Waterlooville, PO8 — £132,500 • 3 bed • 1 bath • 787 ft²


























































































































