Period high-street unit with rear parking and clear conversion potential..
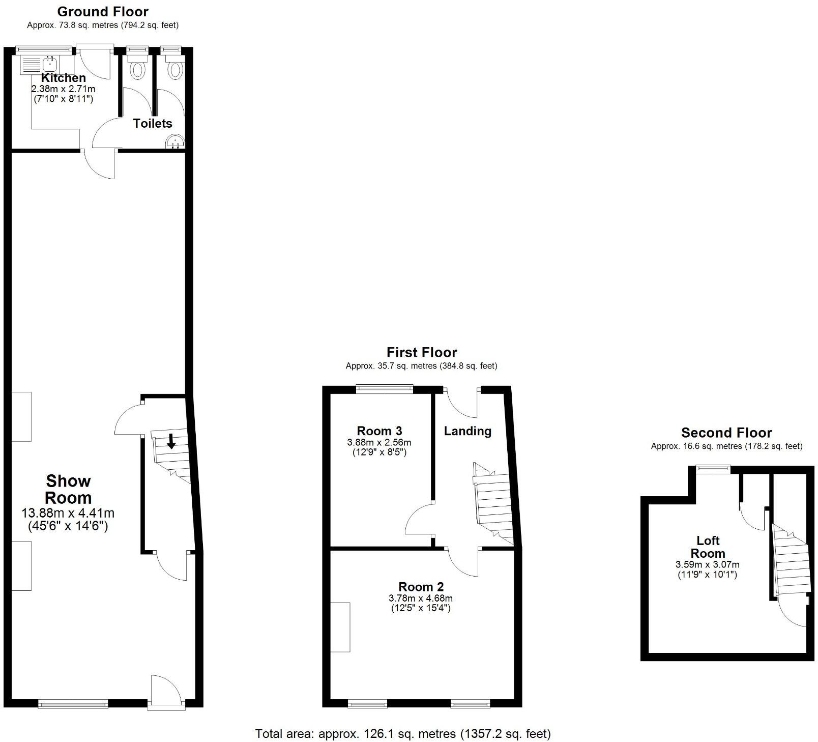
Victorian three-storey building, approx. 1,357 sq ft
Class E retail use; potential for residential conversion (PP required)
Large open-plan ground-floor showroom with tall ceilings
Four-car rear driveway and small rear yard (off-street parking)
Previous rental income record c. £15,000 per annum
Freehold; offered with no onward chain
Small plot and likely refurbishment/modernisation required
Local area: busy high street; above-average crime reported
A substantial Victorian high-street building arranged over three floors, currently class E retail and offered freehold with no onward chain. The property extends to approximately 1,357 sq ft and includes a large open-plan ground-floor showroom, tall ceilings and a bay-windowed shopfront that retains period character. A four-car driveway and small rear yard provide rare off-street parking and practical service access in a busy town-centre location.
This is suitable for investors, developers or owner-occupiers seeking conversion potential. Planning would be required to change use, but the layout supports conversion back to a three- or four-bedroom house, or mixed use with retail at ground floor and residential above. The asset has a previous rental record of c. £15,000 per annum, giving immediate income-history reference for investment appraisal.
Buyers should note material points plainly: the site sits on a small plot and requires planning and likely renovation works to create residential accommodation or modern retail units. The local area records above-average crime and parts of the building will need updating to meet current residential standards and services. Viewings are accompanied.
Positioned on a busy Royal Wootton Bassett High Street, the location benefits from strong local amenities and quick access to junction 16 of the M4. The combination of period frontage, generous internal volume and rear parking creates a flexible opportunity for redevelopment or continued retail use in a thriving market town.
Shop for sale in Broad Street, Town Centre, Swindon, SN1 — £290,000 • 1 bed • 1 bath • 1837 ft²
Office for sale in Radnor Street, Swindon, Swindon, SN1 — £300,000 • 1 bed • 1 bath • 2000 ft²
1 bedroom terraced house for sale in Havelock Street, Swindon, SN1 — £160,000 • 1 bed • 1 bath • 1092 ft²
3 bedroom end of terrace house for sale in Eastcott Road, Old Town, Swindon, Wiltshire, SN1 — £210,000 • 3 bed • 1 bath • 1007 ft²
5 bedroom terraced house for sale in High Street, Royal Wootton Bassett, Swindon, SN4 — £675,000 • 5 bed • 2 bath • 3000 ft²
2 bedroom terraced house for sale in Eastcott Road, Old Town, Swindon, Wiltshire, SN1 — £210,000 • 2 bed • 1 bath • 862 ft²














































