**Standout Features:**
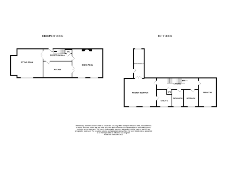
- Exceptional three-bedroom apartment conversion in historic Rackheath Hall
- Expansive 1,922 sq. ft. living space over two floors
- Two upgraded bathrooms and two reception rooms
- Elegant character details, high ceilings, large windows
- Private balcony and impressive countryside views
- Two allocated parking spaces and additional visitor parking
- Recently renovated with modern comforts
**Key Considerations:**
- Leasehold tenure with 107 years remaining
- Average crime rate in the area
- No dogs permitted; no lift in the hall
- Service charge of £3,600 per year
This stunning apartment, set within the picturesque grounds of Rackheath Hall, seamlessly blends historic charm with modern living. With its substantial living space including three spacious bedrooms, two beautifully upgraded bathrooms, and two elegant reception rooms, this home presents a unique opportunity for families or investors alike. The impressive high ceilings and abundant natural light enhance the sense of space, complemented by character features that offer a timeless appeal.
Enjoy serene countryside views from your private balcony, while also having access to extensive communal grounds and a private lake, perfect for leisurely walks or peaceful afternoons. Conveniently located near Norwich, with local amenities, schools, and a bus service at your doorstep, this property is ideal for those seeking tranquility without sacrificing accessibility.
While the apartment boasts a modern renovation and two allocated parking spaces, potential buyers should consider the average crime rate and service fees associated with leasehold ownership. Don’t miss out on this exclusive opportunity to own a slice of elegant countryside living—schedule a viewing today to experience its charm firsthand!
2 bedroom apartment for sale in Whitlingham Hall, Trowse, NR14 — £645,000 • 2 bed • 2 bath • 1854 ft²
2 bedroom apartment for sale in Keswick Hall, Keswick, Norwich, Norfolk, NR4 — £160,000 • 2 bed • 1 bath • 483 ft²
2 bedroom apartment for sale in Drayton, NR8 — £450,000 • 2 bed • 2 bath • 970 ft²
2 bedroom apartment for sale in Falcon Crescent, Costessey, Norwich, Norfolk, NR8 — £170,000 • 2 bed • 2 bath • 661 ft²
3 bedroom penthouse for sale in St. Georges, Wicklewood, Wymondham, Norfolk, NR18 — £495,000 • 3 bed • 2 bath • 1857 ft²
2 bedroom flat for sale in Rackheath Park, Rackheath, Norwich, Norfolk, NR13 — £350,000 • 2 bed • 2 bath • 1077 ft²


















































































































