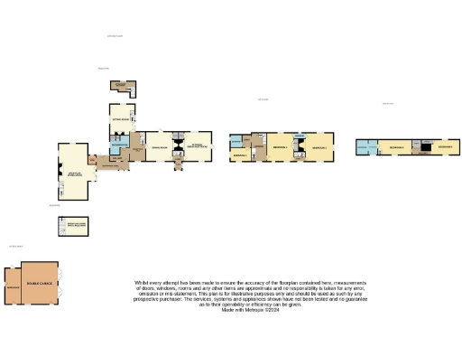
Spacious period house with barn annexe potential and large private gardens.
Five double bedrooms with extensive countryside views
A 17th-century Grade II listed house set in around 0.6 acres, this five-double-bedroom property combines period character with flexible modern living. Exposed beams, high ceilings and two mezzanine areas give rooms a dramatic, airy feel; a converted barn provides an impressive open-plan living space and clear annexe or holiday-let potential. The mature gardens, large driveway, double garage and attached workshop make this a practical family base with space for hobbies or home working.
The layout suits multigenerational households — separate entrances and seven access points give scope for an independent annexe, business use (subject to permissions) or letting income. The current owners have recently redecorated and maintained the house, so many of the principal rooms are move-in ready while retaining period detail.
Buyers should note the property’s Grade II listed status, which will restrict certain alterations and could complicate major works. Heating is oil-fired and drainage is via a private septic tank, which are important ongoing running considerations. Council tax is described as quite expensive and broadband/mobile signal are not exceptional despite generally fast broadband availability.
In short, this is a character-rich rural home for those seeking significant space, garden and flexible accommodation. It will particularly appeal to families or buyers wanting annexe potential, but purchasers must be comfortable with listed-building responsibilities and the property’s servicing arrangements.
5 bedroom detached house for sale in Chain Free in Tibenham, NR16 — £1,495,000 • 5 bed • 4 bath • 5356 ft²
5 bedroom detached house for sale in The Street, Tibenham, NR16 — £1,100,000 • 5 bed • 4 bath • 3701 ft²
4 bedroom detached house for sale in The Street, Tibenham, NR16 — £500,000 • 4 bed • 2 bath • 2190 ft²
5 bedroom detached house for sale in Diss Road, Tibenham, NR16 — £800,000 • 5 bed • 3 bath • 2787 ft²
5 bedroom detached house for sale in The Street, Tibenham, Norwich, NR16 — £1,100,000 • 5 bed • 3 bath • 3729 ft²
3 bedroom detached house for sale in Long Row, Tibenham, NR16 — £475,000 • 3 bed • 1 bath • 2413 ft²










































































































































































