Cash buyers only top-floor two-bedroom with long lease and rental potential.
Top-floor two double bedrooms, lounge and modern kitchen
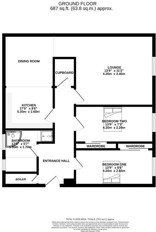
A top-floor, two-double-bedroom apartment in Priddy's Hard offered with no onward chain and a long 999-year lease. The flat sits in a mid‑century block with modern fitted kitchen, a four‑piece bathroom and generous built‑in storage — practical features that suit renters or a buy-to-let portfolio. Allocated parking, communal grounds and a storage shed add useful everyday convenience.
This property is marketed to cash buyers only because the building is of concrete construction; prospective purchasers should commission a structural survey before proceeding. The EPC is rated D and the block’s original cavity walls are assumed uninsulated, so expect modest running costs and potential upgrade work if you plan to improve energy performance.
With advertised rental income around £1,000 pcm and very low local crime, the flat is positioned for straightforward rental demand in an area of terraces and flats. Service charge is relatively low (approx. £935.86 p.a.) and council tax is in Band A, supporting running-cost predictability for an investor.
Overall, this is a practical, ready-to-let top-floor apartment that offers immediate possession and some scope to add value through energy improvements or cosmetic updating. The cash-only restriction and concrete construction are material limitations that buyers must accept or investigate further.
2 bedroom flat for sale in Whiston House, Heritage Way, Priddys Hard, Gosport, PO12 — £165,000 • 2 bed • 1 bath • 614 ft²
2 bedroom apartment for sale in St. Helier Road, Gosport, Hampshire, PO12 — £179,995 • 2 bed • 2 bath • 657 ft²
2 bedroom apartment for sale in Canada Court, Hayling Close, Priddy's Hard, Gosport, PO12 — £175,000 • 2 bed • 2 bath
2 bedroom flat for sale in Ashworth House, Heritage Way, Priddys Hard, PO12 — £169,995 • 2 bed • 1 bath • 603 ft²
2 bedroom apartment for sale in Godwit Close, Gosport, Hampshire, PO12 — £160,000 • 2 bed • 1 bath • 593 ft²
2 bedroom flat for sale in Bucklers Road, Priddy's Hard, Gosport, PO12 — £185,000 • 2 bed • 2 bath • 646 ft²










































