Move-in ready 3-bed semi with open-plan kitchen, garden and parking — ideal for families.
Three bedrooms including master with en suite
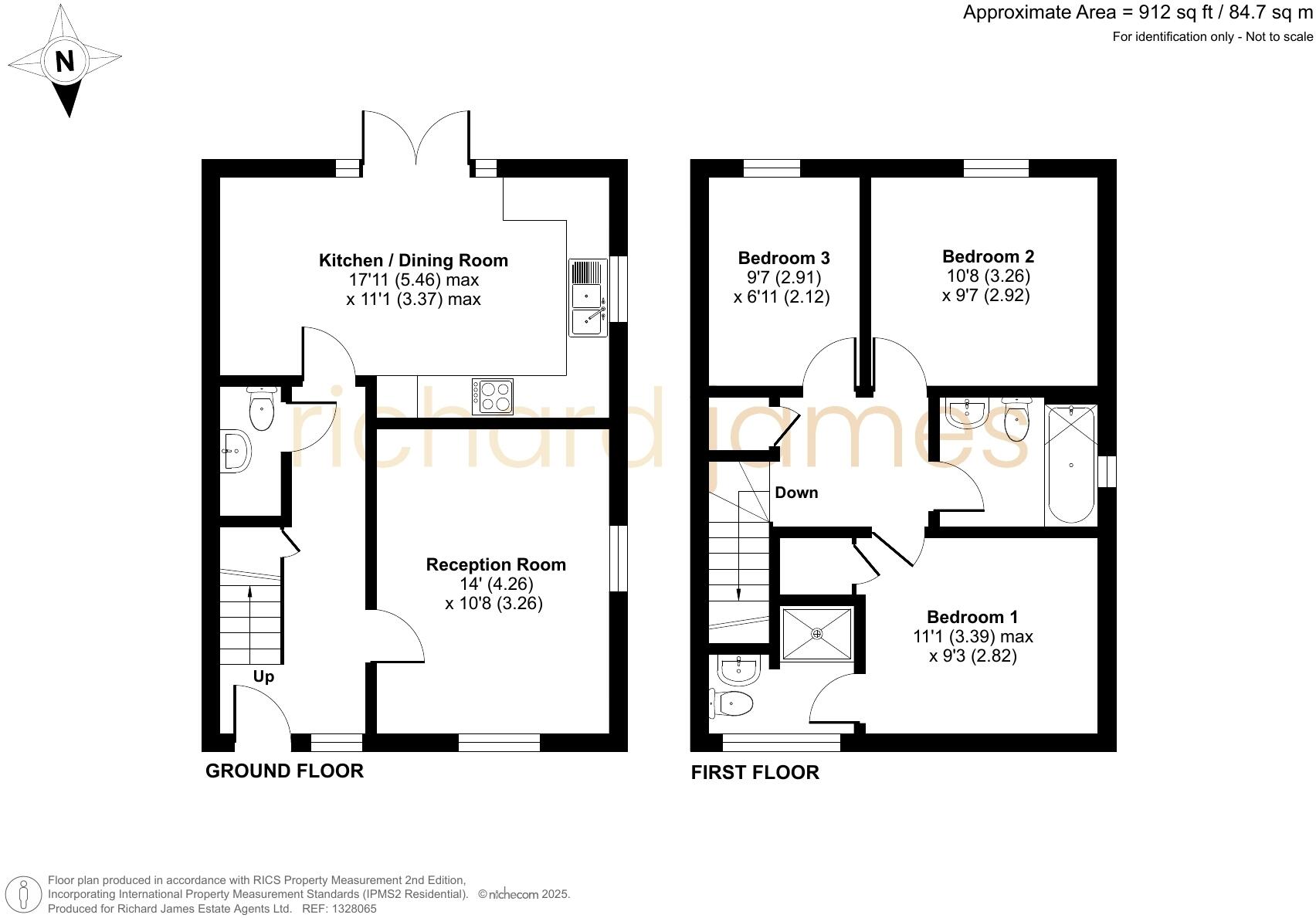
This neat three-bedroom semi-detached house on Woodland Close offers comfortable, move-in-ready living in a well-regarded suburb. The ground floor centres on a wide open-plan kitchen-diner with direct garden access and bright natural light — a practical family hub for meals and weekends. A separate lounge and downstairs WC add day-to-day convenience.
Upstairs provides a principal bedroom with en suite, a double second bedroom and a good single third bedroom suitable for a child or home office. The property measures around 936 sq ft and sits on a small, low-maintenance plot with off-street parking. Mobile signal is excellent and there is no recorded flood risk.
Notable practical points: broadband speeds in the area are very slow, the tenure and council tax band are not provided, and the plot and garden are modest in size. The home is in a very affluent area with average local crime levels and several well-rated nearby schools, making it a straightforward choice for families seeking safety and schooling options.
Overall, the house suits families or first-time buyers who prioritise a ready-to-live-in layout, good local schools and easy daily connectivity by mobile. Buyers who need fast wired internet, a larger garden or confirmed tenure details should factor those matters into their decision and arrange checks before proceeding.
3 bedroom semi-detached house for sale in Alicia Close, Taw Hill, Swindon, SN25 — £300,000 • 3 bed • 2 bath • 559 ft²
3 bedroom terraced house for sale in Cricketers Close, Royal Wootton Bassett, Royal Wootton Bassett, SN4 — £290,000 • 3 bed • 2 bath • 883 ft²
3 bedroom semi-detached house for sale in Nevinson Road, Swindon, SN3 — £350,000 • 3 bed • 2 bath • 953 ft²
3 bedroom semi-detached house for sale in Culverhouse Road, Swindon, SN1 — £318,500 • 3 bed • 2 bath • 1023 ft²
3 bedroom semi-detached house for sale in Trevelyan Road, Swindon, Wiltshire, SN3 — £360,000 • 3 bed • 2 bath • 1033 ft²
3 bedroom semi-detached house for sale in Bolehyde Close, SWINDON, Wiltshire, SN3 — £325,000 • 3 bed • 1 bath • 697 ft²


















































































