Spacious family home with large outbuilding and easy commuter links.
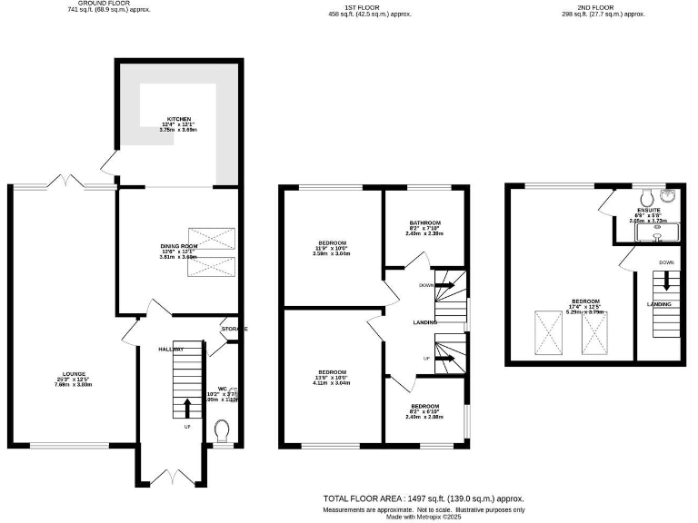
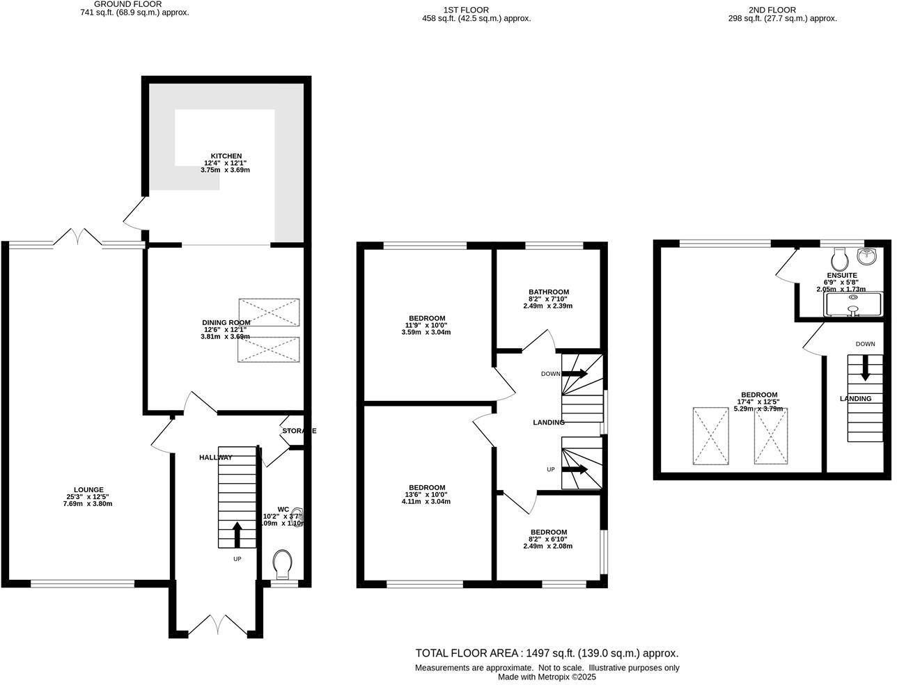
Four bedrooms including loft conversion with ensuite
This extended four-bedroom semi-detached house in sought-after Warley offers a practical family layout across three levels, including a large loft bedroom with ensuite. Living spaces are bright and modern, with a bay-front living room, an open dining area with skylights and a contemporary kitchen that opens directly to the garden — a straightforward floorplan for everyday family life and entertaining.
Outside, a wide private driveway provides ample off-street parking for several vehicles and the rear garden is low-maintenance with paved patio and artificial lawn. The full-width outbuilding at the foot of the garden is a major asset — ideal as a home office, gym, studio or flexible entertaining space for growing families.
Location is a clear strength: the Elizabeth Line station is about one mile away, making commuting into London convenient. Highly regarded local schools are within easy reach, which will suit families prioritising education and local amenities. The property is being sold with a complete chain, allowing a quicker move should you proceed.
Buyers should note a few material points: the area records higher-than-average crime statistics, council tax is above average, and the exterior shows mixed finishes (brick and pebble dash) that may prompt cosmetic updating. Side access is relatively narrow. Overall, the home is well presented and livable now but offers clear scope for modest refurbishment to suit personal taste and add value.
4 bedroom semi-detached house for sale in Warley Hill, Great Warley, Brentwood, CM13 — £695,000 • 4 bed • 2 bath • 788 ft²
3 bedroom terraced house for sale in Brackens Drive, Warley, Brentwood, CM14 — £475,000 • 3 bed • 2 bath • 1296 ft²
4 bedroom detached house for sale in Eagle Way, Great Warley, Brentwood, CM13 — £575,000 • 4 bed • 2 bath • 1222 ft²
3 bedroom semi-detached house for sale in Queen Street, Warley, CM14 — £525,000 • 3 bed • 2 bath • 1042 ft²
4 bedroom semi-detached house for sale in Pennyfields, Warley, CM14 — £535,000 • 4 bed • 1 bath • 1066 ft²
3 bedroom detached house for sale in Magnolia Crescent, Great Warley, Brentwood, CM13 — £725,000 • 3 bed • 2 bath • 1283 ft²














































