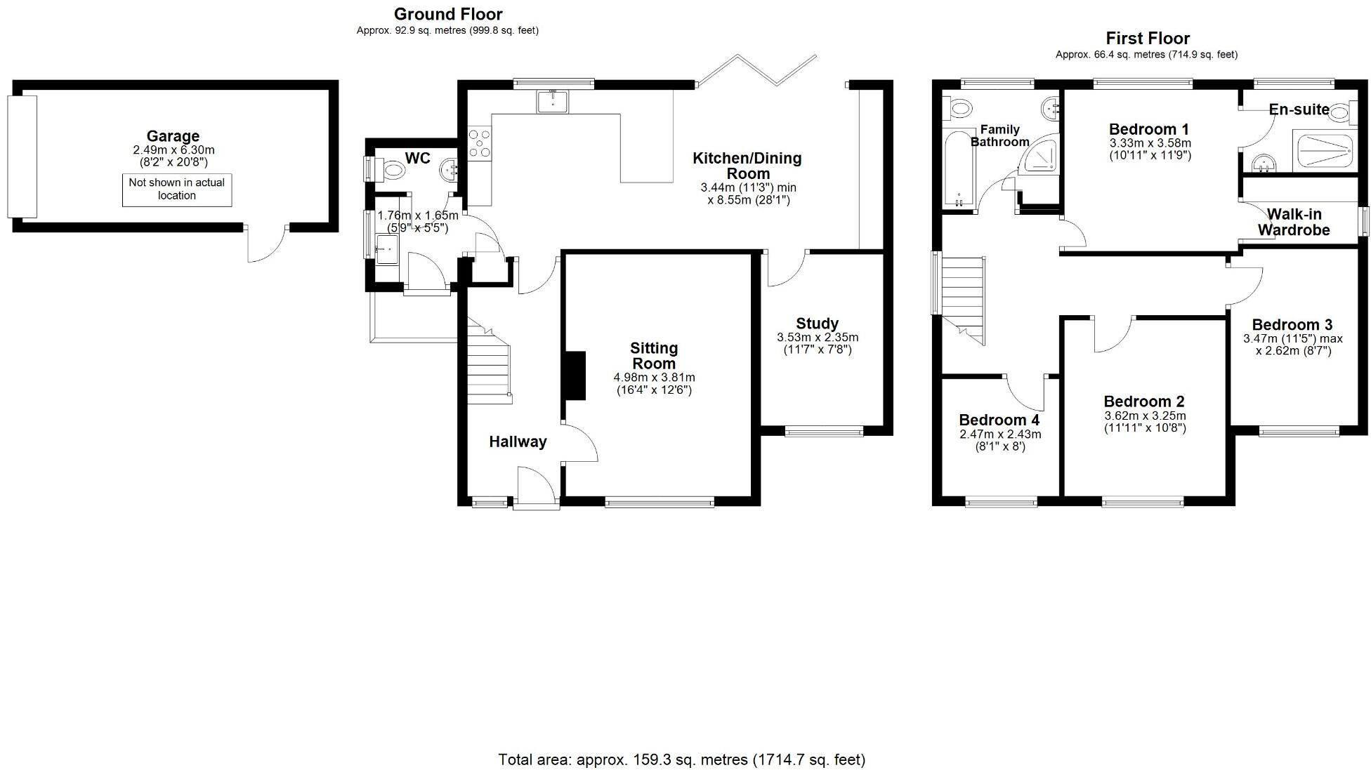
**Standout Features:**
- 4 spacious bedrooms + a study (potential fifth bedroom)
- Impressive kitchen/dining room with bi-fold doors
- Cozy sitting room with log-burning stove
- Enclosed rear garden perfect for families
- Driveway parking for several cars + single garage
- Conveniently located near Liss Village and mainline station
**Summary:**
Discover your perfect family home in this beautifully presented detached house located in the sought-after Liss village, surrounded by the stunning South Downs National Park. With its generous light-filled layout, this property boasts four well-sized bedrooms, including a main suite complete with a walk-in wardrobe and en-suite. The impressive kitchen/dining room is the heart of the home, featuring stylish finishes and bi-fold doors that seamlessly connect indoor and outdoor entertaining areas.
Enjoy cozy winters by the log-burning stove in the spacious sitting room, alongside the added convenience of a utility room and versatile study that can easily serve as a fifth bedroom or family room. The fully enclosed garden provides a safe environment for children to play, while ample driveway parking and a garage cater to all your storage needs.
Located just a pleasant walk from local amenities, primary schools, and excellent transport links to London, this property strikes a charming balance between rural serenity and urban accessibility. It’s a fantastic opportunity for families seeking a comfortable and spacious home in a peaceful setting. Don’t miss out on viewing this gem—properties like this don’t stay on the market long!
4 bedroom detached house for sale in Home Way, Petersfield, Hampshire, GU31 — £850,000 • 4 bed • 2 bath • 1810 ft²
3 bedroom semi-detached house for sale in Andlers Ash Road, Liss, Hampshire, GU33 — £470,000 • 3 bed • 2 bath • 927 ft²
3 bedroom detached bungalow for sale in Birch Close, Liss, Hampshire, GU33 — £500,000 • 3 bed • 1 bath • 890 ft²
4 bedroom detached house for sale in Rosewood Road, Lindford, Hampshire, GU35 — £550,000 • 4 bed • 2 bath • 1411 ft²
4 bedroom detached house for sale in Denmead, Hampshire, PO7 — £625,000 • 4 bed • 2 bath • 2170 ft²
3 bedroom detached bungalow for sale in Liss, Hampshire, GU33 — £800,000 • 3 bed • 2 bath • 1201 ft²














































































































