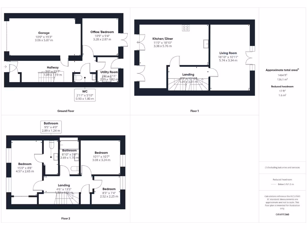
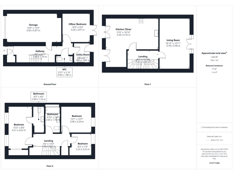
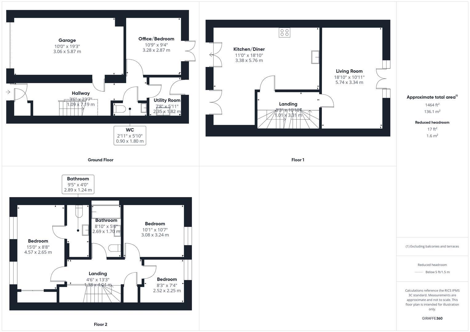
Bright flexible layout with garage and private garden, ideal for growing families..
Integral single garage plus two-car driveway for easy parking
First-floor living room with good natural light and Juliet balconies
Principal bedroom with built-in wardrobes and en suite shower
Ground-floor flexible room/office with double doors to the garden
Fully enclosed, low-maintenance rear garden with patio and decking
Utility room and cloakroom add practical family convenience
Rooms are average-sized; modern finish but limited plot space
Council tax band above average increases ongoing holding costs
Set over three floors, this four-bedroom mid-terrace house in Berryfields is arranged with family life in mind. The flexible ground-floor room opens to the fully enclosed rear garden, while the first-floor living room and generous kitchen/diner provide bright, sociable space. The principal bedroom on the top floor includes built-in wardrobes and an en suite. Practical extras include an integral garage, two-car driveway and a utility room with direct garden access.
The location suits commuters and families: Aylesbury Parkway station is on the development with direct services to London, nearby primary and secondary schools are rated Good or better, and local shops and leisure facilities are within easy reach. The area is affluent with fast broadband and excellent mobile signal, and the property is freehold with low flooding risk.
Rooms are contemporary and of average size for a modern townhouse; the plot is small and the garden designed for low maintenance rather than expansive outdoor living. Council tax is above average, which will affect ongoing running costs. Overall the house offers a practical, well-connected package for growing families or those seeking flexible living space, with straightforward maintenance and scope to personalise finishes.
4 bedroom semi-detached house for sale in Noble Crescent, Berryfields, HP18 — £450,000 • 4 bed • 2 bath • 1489 ft²
4 bedroom house for sale in Paradise Orchard, Aylesbury, Buckinghamshire, HP18 — £425,000 • 4 bed • 2 bath • 1358 ft²
5 bedroom town house for sale in Nicholas Charles Crescent, Aylesbury, HP18 — £490,000 • 5 bed • 3 bath • 1609 ft²
4 bedroom town house for sale in Colney Road, Berryfields, Aylesbury, HP18 — £483,000 • 4 bed • 2 bath • 1561 ft²
4 bedroom detached house for sale in Farleigh Drive, Berryfields, Aylesbury, HP18 — £525,000 • 4 bed • 2 bath • 1471 ft²
3 bedroom end of terrace house for sale in Glenton Green, Aylesbury, HP18 — £400,000 • 3 bed • 2 bath • 1018 ft²






















































































