Convenient commuter location with allocated parking and low-maintenance outside space.
Four bedrooms across three floors with en-suite to the master
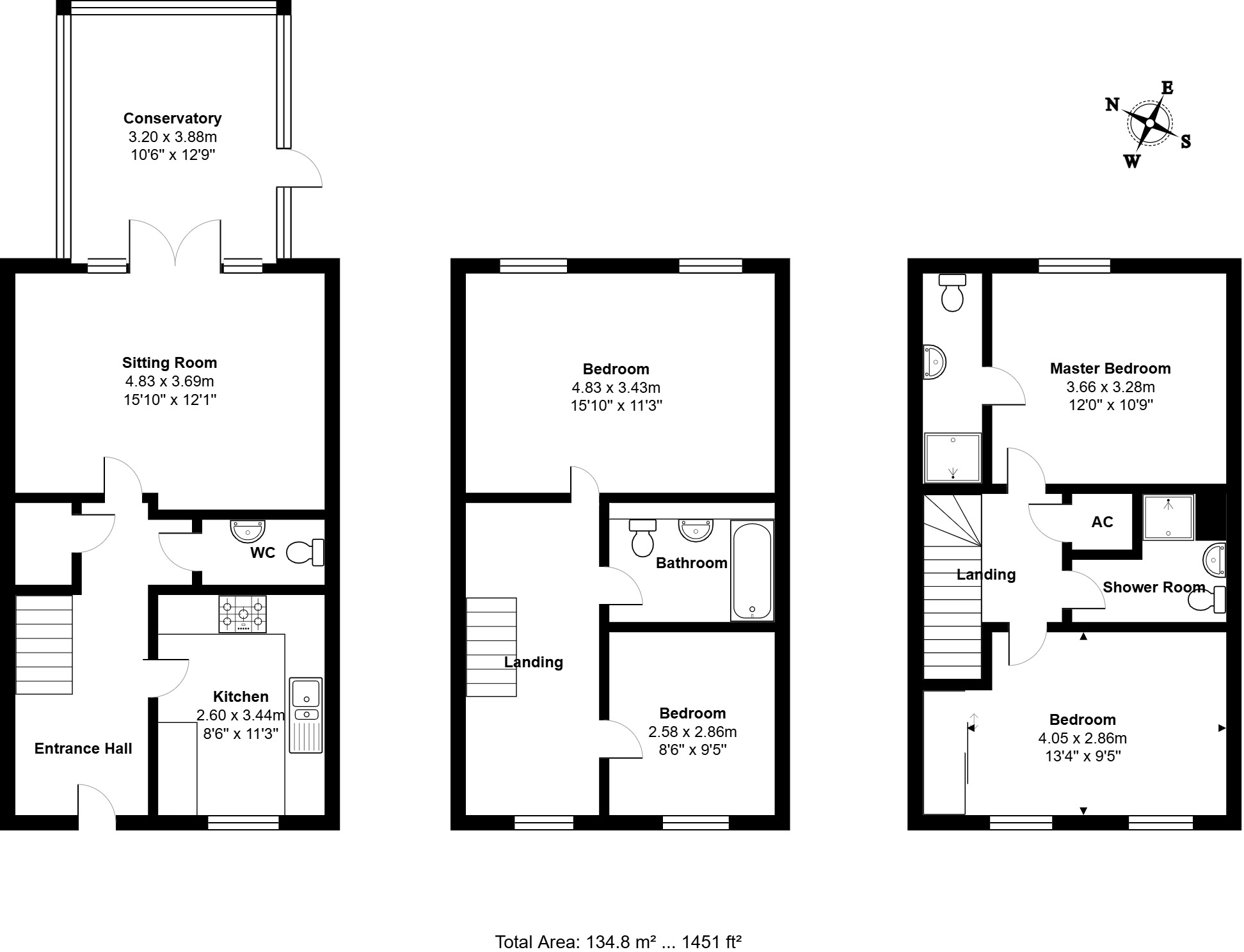
Set on a quiet cul-de-sac in Needham Market, this freehold four-bedroom townhouse offers well-balanced family accommodation across three floors. The layout includes a main sitting room with French doors into a conservatory, a fitted kitchen, ground-floor cloakroom and three bathrooms including an en-suite to the master — practical for household routines and guests.
Outside there are two allocated parking spaces and a small, low-maintenance rear courtyard with gated access and a timber shed. The property sits a short walk from shops, cafes and the town railway station, making commutes and everyday errands straightforward. Broadband and mobile signal are strong, and the area records low crime.
The house is presented in good overall order but some rooms show dated décor and would benefit from light cosmetic updating to reflect modern tastes. The plot is modest in size, so buyers seeking large gardens should note the compact outdoor space. There is an annual maintenance contribution of approximately £187.03 towards communal areas.
Ideal for growing families or commuters seeking a practical, turn-key home close to transport links, this townhouse combines sensible space, multiple bathrooms and convenient parking with scope to personalise interiors.
4 bedroom town house for sale in Flint Drive, Needham Market, Ipswich, IP6 — £325,000 • 4 bed • 2 bath • 994 ft²
4 bedroom house for sale in High Street, Needham Market, Ipswich, IP6 — £477,000 • 4 bed • 1 bath • 2225 ft²
3 bedroom end of terrace house for sale in Quarry Avenue, Needham Market, Ipswich, IP6 — £350,000 • 3 bed • 2 bath • 723 ft²
4 bedroom terraced house for sale in Quarry Avenue, Needham Market, Ipswich, Suffolk, IP6 — £350,000 • 4 bed • 3 bath • 3355 ft²
4 bedroom town house for sale in Jamestown Boulevard, Ipswich, IP2 — £225,000 • 4 bed • 2 bath • 1475 ft²
2 bedroom apartment for sale in Jubilee Crescent, Needham Market, Ipswich, IP6 — £160,000 • 2 bed • 2 bath • 601 ft²






































































