Large two-bed Victorian conversion near Sundridge Park station, no onward chain..
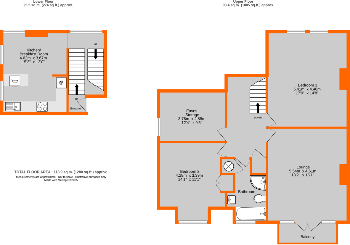
- Extremely large top-floor split-level Victorian conversion (approx. 1,280 sq ft)
- Two double bedrooms and large lounge with balcony and treetop views
- Dual-aspect kitchen/breakfast room with space for dining
- Garage en bloc; communal grounds only, minimal private garden
- Double glazed and mains gas central heating throughout
- Leasehold sale; sold with no onward chain
- Solid brick construction likely lacks cavity insulation
- Eaves/store could be converted but needs permissions
A spacious two-double-bedroom, split-level top-floor conversion occupying the whole upper floor of a Victorian semi. The flat feels bright and airy with high ceilings, exposed brick, wood floors and a large lounge that opens onto a sunny balcony overlooking treetops. The dual-aspect kitchen/breakfast room comfortably fits a dining table and receives plenty of natural light.
Practical features include double glazing, mains gas central heating, and an external garage en bloc. The size is a standout — approximately 1,280 sq ft — making this larger-than-average two-bedroom an unusually roomy option for the area. Sundridge Park station is about 0.3 miles away, with local shops, primary schools and Bromley town centre within easy reach.
Important points to note: the property is leasehold and sold with no onward chain. The building’s original solid-brick walls likely have little or no cavity insulation. There is an eaves/storage area off the landing currently used as an occasional office; any formal conversion would require the correct planning and leaseholder permissions. Council tax is above average for the area.
This flat will suit buyers who value period character and generous space — families wanting local schools and transport links, or investors seeking a large, lettable two-bedroom in a popular Bromley location. It is presented well but not a new-build standard; buyers should allow for typical maintenance and consider insulation or energy-efficiency improvements where appropriate.
2 bedroom flat for sale in Highland Road, Bromley, BR1 — £375,000 • 2 bed • 1 bath • 872 ft²
2 bedroom apartment for sale in Southborough Lane, Bromley, BR2 — £350,000 • 2 bed • 1 bath • 770 ft²
1 bedroom flat for sale in Cambridge Road, Bromley, BR1 — £270,000 • 1 bed • 1 bath • 816 ft²
2 bedroom apartment for sale in Freelands Road, Bromley, BR1 — £315,000 • 2 bed • 1 bath • 635 ft²
2 bedroom apartment for sale in Bromley Road, Shortlands, Bromley, BR2 — £450,000 • 2 bed • 1 bath • 1000 ft²
2 bedroom flat for sale in Park Road, Bromley, Kent, BR1 — £375,000 • 2 bed • 1 bath • 724 ft²


















































