Spacious four-bedroom house with studio and countryside views, ideal for growing families.
Newly renovated throughout with high-quality finishes
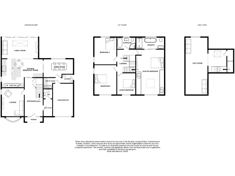
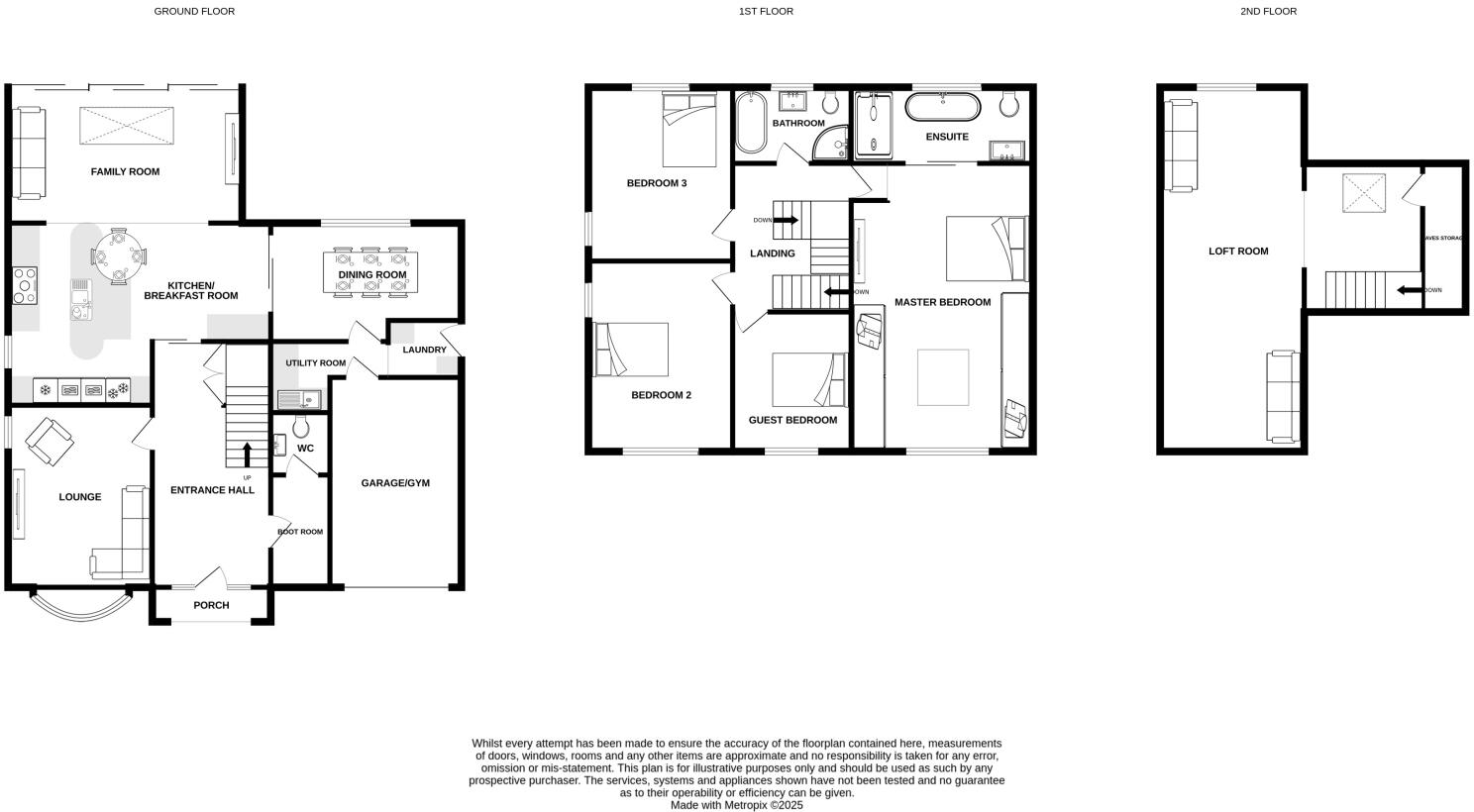
This extensively refurbished four-bedroom detached house offers almost 3,000 sqft of comfortable, contemporary family living in the village of Plumley. The property is arranged over multiple floors and has been finished to a high standard throughout, with a standout open-plan kitchen/family room, formal dining room, and a large master suite overlooking open fields. The recent renovation means most mechanicals and finishes are new, reducing short-term maintenance needs.
Externally the large, professionally landscaped rear garden and raised decked terrace create excellent outdoor entertaining space. A bespoke home studio/office and covered entertainment area (currently fitted with a hot tub, projector and screen) extend living options and are ideal for home working, leisure, or social gatherings. The plot backs directly onto open countryside, providing privacy and rural outlooks.
Practical family features include a boot room, utility/laundry room, downstairs WC, garage currently used as a gym, generous off-street parking and a loft conversion used as a playroom. Local schooling options include highly rated primary and secondary choices within easy reach. Mobile signal is excellent, though fixed broadband speeds are average.
Notable limitations: the converted loft has restricted head height and is best suited to children’s use or storage rather than full-height living; broadband performance is average; local crime levels are average. Overall, the house presents a newly renovated, spacious family home with strong indoor/outdoor flow and versatile ancillary spaces.
6 bedroom detached house for sale in Plumley Moor Road, Plumley, Knutsford, Cheshire, WA16 — £1,500,000 • 6 bed • 3 bath • 4140 ft²
5 bedroom detached house for sale in Newton Hall Lane, Mobberley, WA16 — £2,350,000 • 5 bed • 3 bath • 2545 ft²
5 bedroom detached house for sale in Ash Close, Lower Peover, WA16 — £950,000 • 5 bed • 4 bath • 2774 ft²
4 bedroom detached house for sale in Park Lane, Pickmere, Knutsford, WA16 — £595,000 • 4 bed • 2 bath • 1675 ft²
4 bedroom detached house for sale in Carlisle Close, Mobberley, WA16 — £725,000 • 4 bed • 2 bath • 1662 ft²
5 bedroom detached house for sale in Buttermere Drive, Alderley Edge, SK9 — £995,000 • 5 bed • 4 bath • 2385 ft²


















































































































































