Modern 4-bed detached with panoramic Pennines views and landscaped south garden.
South-facing landscaped garden with panoramic Pennines views
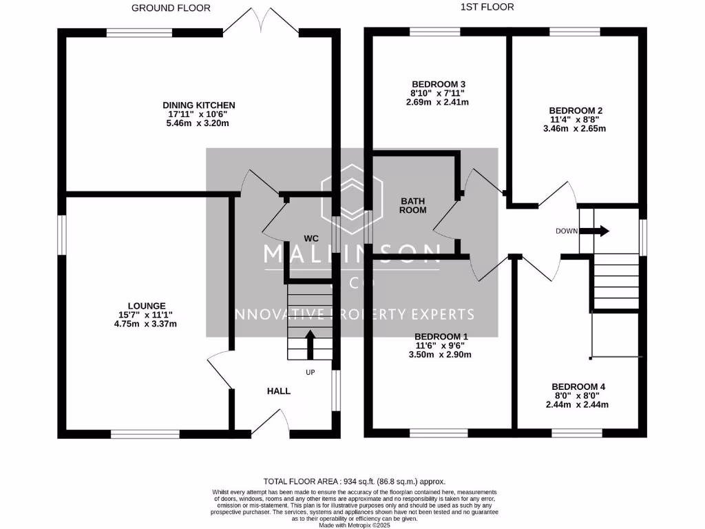
Open-plan dining kitchen maximises light and outlook
Off-street parking for up to three vehicles
Modern build (post-2012) with contemporary finishes throughout
Single family bathroom plus downstairs WC may be tight for four bedrooms
Total internal area modest at c.944 sq ft
Freehold, mains gas central heating and double glazing
Local broadband reported slow — consider provider upgrade
Set on a south-facing plot with panoramic views towards the Pennines, this modern four-bedroom detached house offers low-maintenance, contemporary living for families or downsizers. Built since 2012 and finished throughout, the home features an open-plan dining kitchen that takes full advantage of the outlook, a stylish recently updated bathroom, and landscaped gardens with a large patio and raised deck for outdoor entertaining.
Practical strengths include off-street parking for several vehicles, gas central heating, double glazing, and a freehold tenure in an affluent, peaceful neighbourhood close to schools, bus links and local amenities. The property is presented in good decorative order and will suit buyers wanting a move-in-ready house with strong lifestyle appeal.
Buyers should note the overall internal size is modest (approximately 944 sq ft) and there is a single family bathroom plus a downstairs WC, which could feel tight for four bedrooms during busy periods. Broadband speeds in the area are reported as slow; streaming or heavy home-working may require a specialist provider or upgrade.
Overall this is a well-kept, modern family home in a desirable southerly position with far-reaching views. It will particularly suit purchasers prioritising outlook, external entertaining space and a low-maintenance contemporary interior, while those needing high-speed internet or multiple bathrooms should factor potential upgrades into their plans.
4 bedroom detached house for sale in Calver Close, Dodworth, Barnsley, S75 3QW, S75 — £385,000 • 4 bed • 2 bath • 1535 ft²
4 bedroom detached house for sale in Doncaster Road, Barnsley, S71 5EF, S71 — £575,000 • 4 bed • 3 bath • 2592 ft²
4 bedroom detached house for sale in Langford Close, Dodworth, S75 3TP, S75 — £365,000 • 4 bed • 3 bath • 1295 ft²
4 bedroom detached house for sale in Shelley Drive, Wombwell, Barnsley, S73 0FS, S73 — £369,950 • 4 bed • 3 bath • 1425 ft²
3 bedroom detached house for sale in Kingwell Road, Worsbrough, Barnsley, S70 4HG, S70 — £360,000 • 3 bed • 2 bath • 1359 ft²
4 bedroom detached house for sale in Middleton Grove, Dodworth, Barnsley, S75 3FD, S75 — £319,995 • 4 bed • 3 bath • 1277 ft²














































































































