Generous rooms and big plot ideal for growing families.
Large mature rear garden with elevated open views
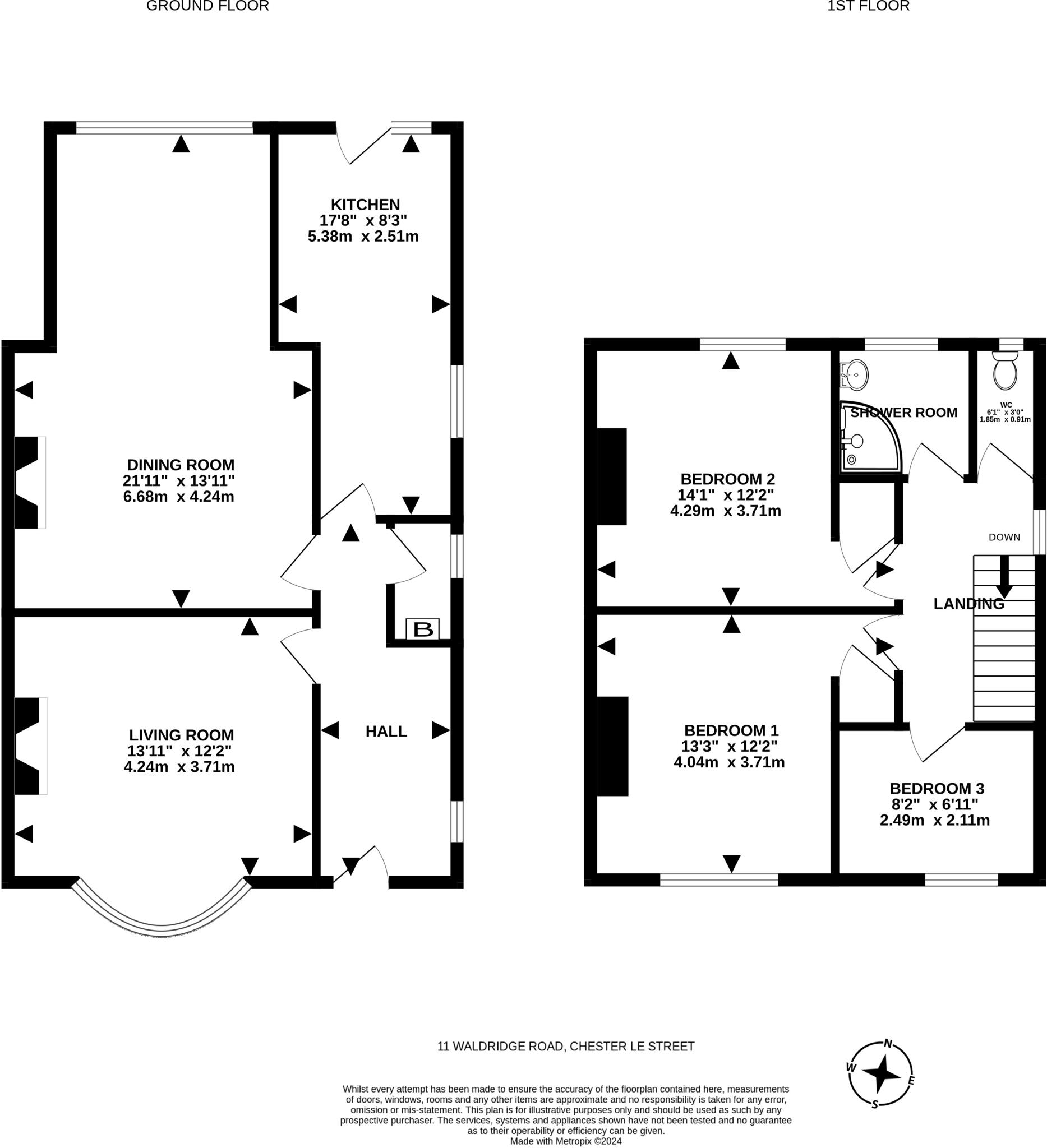
Set on a large mature plot in a highly regarded part of Chester-le-Street, this traditional 1930s semi-detached house offers roomy family living and excellent scope to adapt. A substantial rear extension creates a 21ft family/dining room and a 17ft kitchen, with potential to combine for a generous open-plan ground floor. The separate front lounge features a bay window and period-style fireplace for a more formal sitting space.
Practical improvements include a replacement roof, cavity wall insulation, double glazing and gas central heating with a Worcester combi boiler. The front block-paved drive provides ample off-street parking and the rear is elevated to give open views over the gardens. The very extensive plot allows scope for further extension subject to planning.
Buyers should note there is a single shower room and WC on the first floor, and while the property has recent upgrades it may suit those wanting additional refurbishment or reconfiguration. The address is close to town schools, shops and transport links, making it a convenient family base, but the area records above-average crime and is in a very deprived local authority area — factors to weigh for some buyers. If you want roomy, adaptable accommodation in a sought-after road, this house merits an early inspection.
5 bedroom detached house for sale in Falstone Drive, Chester Le Street, Durham, DH2 — £375,000 • 5 bed • 3 bath • 1486 ft²
4 bedroom detached house for sale in Park Road North, Chester Le Street, DH3 — £600,000 • 4 bed • 3 bath • 2051 ft²
3 bedroom semi-detached house for sale in Appledore Gardens, Chester Le Street, County Durham, DH3 — £250,000 • 3 bed • 1 bath • 975 ft²
5 bedroom detached house for sale in Hauxley Drive, Chester Le Street, Durham, DH2 — £600,000 • 5 bed • 3 bath • 2820 ft²
3 bedroom semi-detached house for sale in Lombard Drive, Chester Le Street, Durham, DH3 — £220,000 • 3 bed • 1 bath • 807 ft²
3 bedroom semi-detached house for sale in Twelfth Avenue, Chester Le Street, Durham, DH2 — £155,000 • 3 bed • 1 bath • 939 ft²






























































