Affordable starter home with low running costs and private garden.
55% shared ownership; remaining 45% charged at £222.01 monthly rent
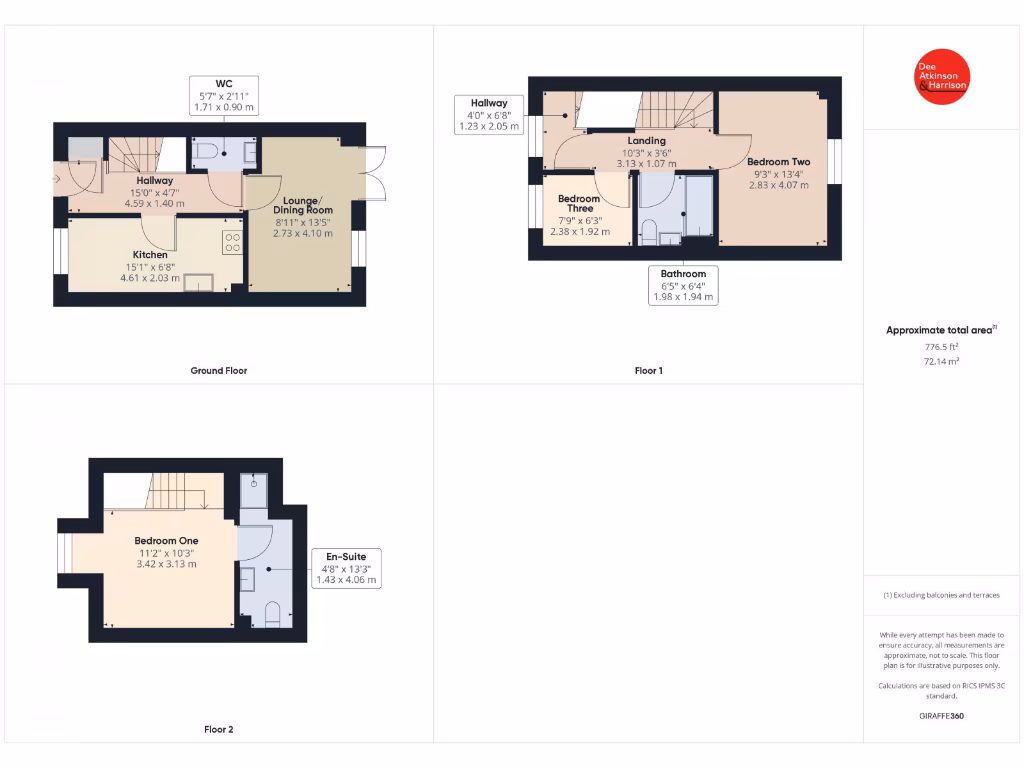
A compact, well-presented three-bedroom mid-terrace arranged over three floors, offered as 55% shared ownership. The ground floor has a practical open-plan lounge/dining area and a modern kitchen. French doors open to an east-facing garden with patio and lawn — a manageable outdoor space for gardening or a small seating area. The property includes allocated off-street parking for one car and gas central heating throughout.
Upstairs are two bedrooms and a family bathroom, with the principal bedroom on the top floor benefiting from an en-suite and eaves storage. The home is double-glazed, energy-efficient (EPC B) and in a very low-crime, affluent neighbourhood with fast broadband — features that suit first-time buyers and those downsizing. Local schools are well-rated and Driffield provides good transport links to larger centres.
Important practical points: this is a leasehold shared ownership home — the listing price reflects a 55% share with a monthly rent of £222.01 on the remaining 45%, plus modest lease management and buildings insurance charges. There are 125 years remaining on the lease (started 30/09/2020). The internal footprint is compact (approx. 776 sq ft), so room sizes and storage are modest and the layout is best suited to buyers who value affordability over large living spaces.
Overall this is a tidy, low-maintenance starter home with sensible running costs and clear potential for a first-time buyer to personalise. Buyers should budget for the shared ownership rent/fees and consider whether the compact layout matches long-term needs before viewing.
House for sale in Collinson Close, Driffield, YO25 5AS, YO25 — £185,000 • 1 bed • 1 bath • 776 ft²
3 bedroom terraced house for sale in Woodmansey Garth, Driffield, YO25 5GF, YO25 — £185,000 • 3 bed • 2 bath • 804 ft²
3 bedroom terraced house for sale in Woodmansey Garth, Driffield, YO25 5GF, YO25 — £72,150 • 3 bed • 2 bath • 862 ft²
3 bedroom semi-detached house for sale in Crop Close, Driffield, YO25 — £129,000 • 3 bed • 1 bath • 840 ft²
2 bedroom semi-detached bungalow for sale in Harthill Avenue, Leconfield, HU17 7LN, HU17 — £105,000 • 2 bed • 1 bath • 624 ft²
3 bedroom semi-detached house for sale in Woldholme Avenue, Driffield, YO25 — £180,000 • 3 bed • 1 bath • 747 ft²










































































































