Chain-free renovation project near canal and countryside walks, ideal for value-focused buyers.
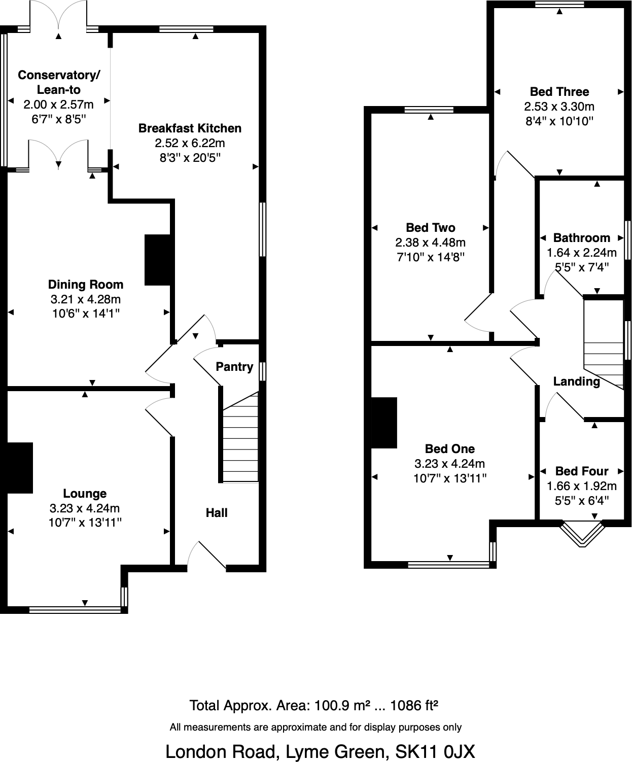
- Four bedrooms with extended, flexible accommodation
- Generous front and rear gardens, small overall plot
- Substantial frontage could allow off-road parking (consents needed)
- Requires full renovation throughout; roof repair noted
- Damp issues present; modernization required throughout
- Single bathroom only; scope for adding facilities
- EPC rating D; energy improvements advisable
- Slow broadband speeds; mains gas heating present
Set in sought-after Lyme Green, this four-bedroom semi-detached house is offered chain-free and ready for a full renovation. The property has been extended over the years to provide generous living space across two storeys, with a medium-sized living room, bay windows and period character details awaiting restoration.
Outside there are front and rear gardens with a substantial frontage that could accommodate off-road parking subject to necessary consents. The home sits close to countryside walks and the Macclesfield Canal, while local amenities and several primary and secondary schools are within easy reach.
Buyers should note the house requires comprehensive modernisation: roof repair and damp have been identified, heating is mains gas with a boiler and radiators, broadband speeds are slow and there is only one bathroom. EPC rating D and a small plot size mean energy and expansion opportunities should be considered during planning.
This is a clear value-add opportunity for an experienced investor or purchaser wanting to create a comfortable family home in a popular location. The freehold tenure and chain-free sale simplify purchase logistics, but practical renovation costs and potential planning consents should be factored into any offer.
2 bedroom semi-detached house for sale in Minor Avenue, Lyme Green, Macclesfield, Cheshire, SK11 — £170,000 • 2 bed • 1 bath • 870 ft²
3 bedroom semi-detached house for sale in Robin Crescent, Lyme Green, Macclesfield, SK11 — £299,950 • 3 bed • 1 bath • 725 ft²
3 bedroom house for sale in Robin Lane, Lyme Green, Macclesfield, SK11 — £350,000 • 3 bed • 1 bath • 977 ft²
4 bedroom semi-detached house for sale in Robin Crescent, Lyme Green, Macclesfield, SK11 — £399,950 • 4 bed • 2 bath • 1306 ft²
2 bedroom end of terrace house for sale in Home Farm Avenue, Macclesfield, SK10 — £230,000 • 2 bed • 1 bath • 539 ft²
2 bedroom semi-detached bungalow for sale in Larch Avenue, Macclesfield, SK11 — £220,000 • 2 bed • 1 bath • 1296 ft²


































