A generous, low-maintenance over-55s home with private garden and communal support.
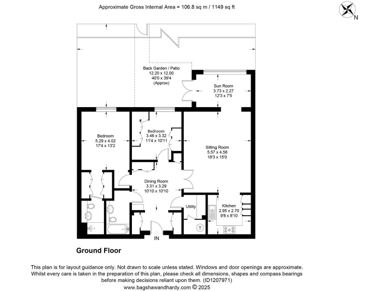
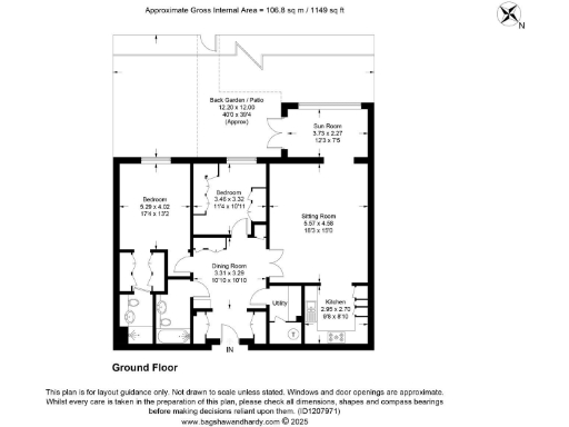
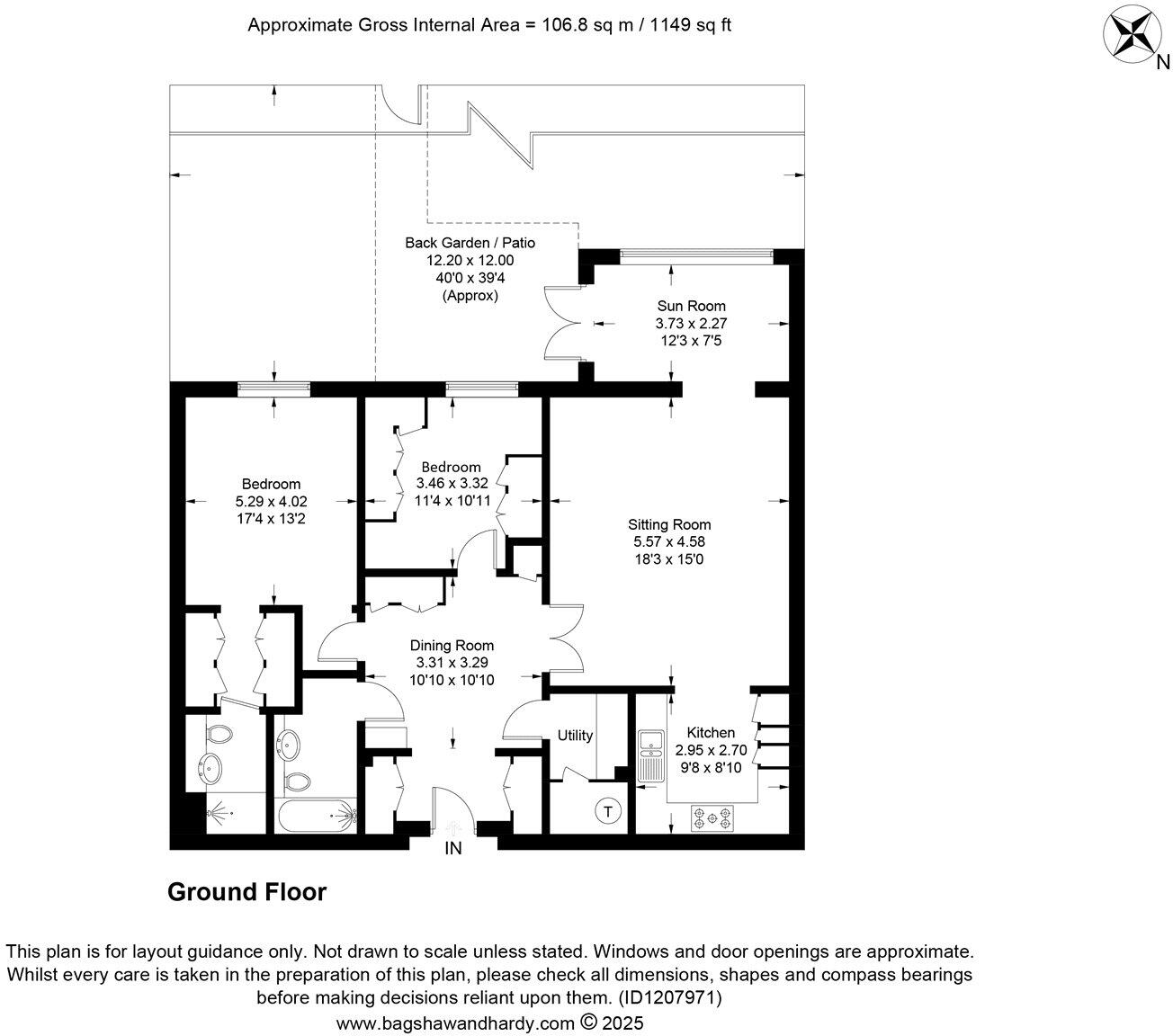
Large ground-floor apartment approx. 1,149 sq ft single-level living
Private landscaped rear garden with sun room access
Two double bedrooms and two bathrooms; fitted wardrobes
Modern kitchen, separate utility room with washer and dryer
Residents' lounge, guest suite and on-site manager for support
Allocated off-street parking; communal grounds maintained
Leasehold with 990 years remaining; service charge approx. £3,800 pa
Above-average council tax; local area records higher crime rates
This sizeable ground-floor apartment (c.1,149 sq ft) is designed for over-55s and offers single-level living with generous rooms and a private landscaped garden. The layout includes two double bedrooms, two bathrooms, a modern kitchen with a separate utility and a sun room that opens onto the garden — practical for everyday life and visiting family.
The development provides communal facilities that support independent living: a residents’ lounge, guest suite, an on-site manager and maintained communal grounds. Heating is via a gas boiler with underfloor heating, and the home has good built-in storage and allocated off-street parking for convenience.
Buyers should note this is a leasehold retirement property with an annual service charge (approx. £3,800) and above-average council tax. The long lease remaining (990 years) is a strong positive, but the site records a higher local crime level — worth factoring into personal safety and insurance considerations.
Offered chain-free and positioned under a mile from Leatherhead town centre, the flat suits downsizers or retirees seeking low-maintenance, sociable living with private outdoor space and easy access to local shops, rail links and healthcare amenities.
2 bedroom apartment for sale in Leatherhead, KT22 — £375,000 • 2 bed • 2 bath • 817 ft²
2 bedroom apartment for sale in Ashcroft Place, Epsom Road, Leatherhead, KT22 — £215,000 • 2 bed • 2 bath • 678 ft²
2 bedroom retirement property for sale in Hartfield Road, Leatherhead, Surrey, KT22 — £525,000 • 2 bed • 2 bath • 1023 ft²
2 bedroom retirement property for sale in Holly Court, Leatherhead, KT22 — £175,000 • 2 bed • 2 bath • 852 ft²
3 bedroom retirement property for sale in Reeves House, 2 Hartfield Road, Leatherhead, KT22 — £675,000 • 3 bed • 2 bath • 1400 ft²
1 bedroom retirement property for sale in Kingston Avenue, Leatherhead, KT22 — £205,000 • 1 bed • 1 bath • 665 ft²


















































