**Standout Features:**
- Large building plot of approximately ¼ acre with a southerly aspect
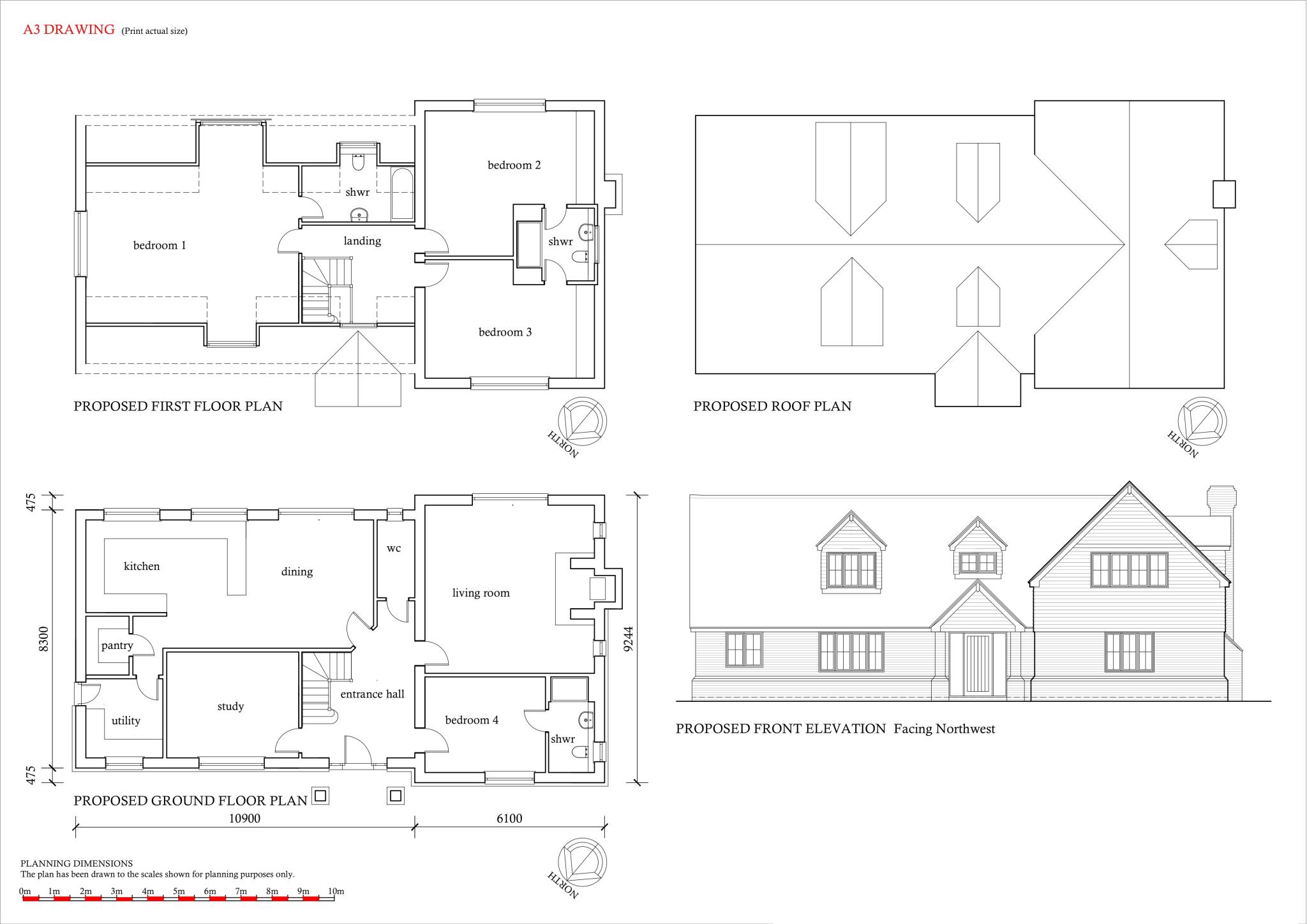
- Planning permission for a substantial detached 4 to 5-bedroom house (circa 2,500 sq ft)
- Idyllic semi-rural setting backing onto grazing meadows
- Off-street parking and level garden plot
- Close proximity to Burwash village amenities and mainline train stations (Etchingham and Stonegate)
**Summary:**
Seize this rare opportunity to create your dream home on a substantial building plot located in the picturesque village of Burwash. Set off a tranquil country lane, this exceptional site offers planning permission for a bespoke 4 to 5-bedroom residence with modern character, featuring spacious living areas, multiple en-suite bedrooms, and a large garden with beautiful rural views. Ideal for self-build enthusiasts and those looking to establish their family in a serene yet accessible area, this property is just a short drive from key transport links, ensuring easy commutes to London.
With low crime rates and an affluent community, Burwash boasts a reputable primary school and local amenities, making it a wonderful location for families. However, be mindful that the heritage-style garage depicted in visuals does not currently have planning approval, which means future buyers will need to navigate that separately. Don’t miss out on this unique chance to invest in a bespoke building plot that hardly ever reaches the market—your dream home awaits!
3 bedroom detached house for sale in Vicarage Road, Burwash Common, Etchingham, East Sussex, TN19 — £799,950 • 3 bed • 2 bath • 1325 ft²
Plot for sale in Single Plot at Swife Lane, TN21 — £850,000 • 4 bed • 1 bath • 3628 ft²
5 bedroom detached house for sale in Palehouse Common, Framfield, East Sussex, TN22 — £875,000 • 5 bed • 4 bath • 4628 ft²
Land for sale in Cranbrook Road, Hawkhurst, Kent, TN18 — £795,950 • 1 bed • 1 bath • 21780 ft²
Plot for sale in Whatlington Road, Battle, TN33 — £400,000 • 1 bed • 1 bath • 2680 ft²
Plot for sale in Single Plot at Swife Lane, TN21 — £500,000 • 3 bed • 1 bath • 2272 ft²


































