Freehold high-street unit with rear yard and strong pedestrian traffic.
Prominent wide glazed frontage for strong shop visibility
A prominent freehold commercial unit on Benfleet High Road offering exceptional frontage and constant footfall. The wide glazed shopfront and large forecourt provide strong display and signage potential, ideal for retail, café, salon or service uses. Rear yard and possible garage deliver practical storage and delivery space.
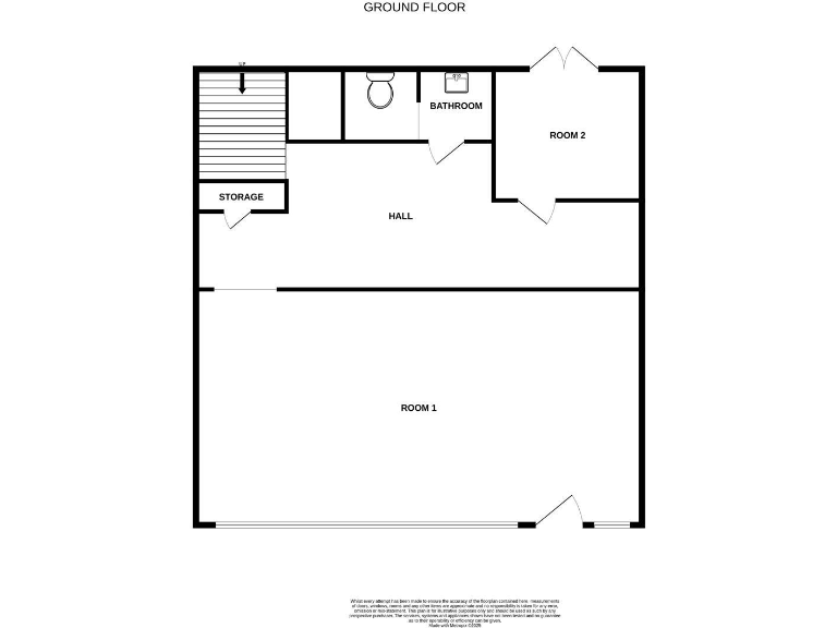
Internally the ground floor has a large primary room plus a smaller secondary room, hall and WC — a flexible footprint for trading or conversion. An upper floor with one bedroom and bathroom appears residential in layout and will need modernisation if retained for living or let as ancillary accommodation.
This is a clear opportunity for an investor or owner-operator seeking a high-profile, easily accessible site. Transport links are good (Benfleet 1.3 miles) and neighbouring established traders provide built-in passing trade. Note the property will benefit from refurbishment and cosmetic updating; plot and garden area are small, and broadband speeds are reported slow which may affect some occupiers.
High street retail property for sale in 200 High Road, Benfleet, SS7 5LD, SS7 — £450,000 • 1 bed • 1 bath • 1733 ft²
High street retail property for sale in 206 High Road, Benfleet, SS7 5LD, SS7 — £460,000 • 1 bed • 1 bath • 1358 ft²
Commercial property for sale in London Road, Leigh-on-sea, SS9 — £400,000 • 1 bed • 1 bath • 674 ft²
High street retail property for sale in Shop, 80 Oban Road, Southend-On-Sea, SS2 4JL, SS2 — £380,000 • 1 bed • 1 bath • 1181 ft²
Light industrial facility for sale in 287 High Road, Benfleet, SS7 5HA, SS7 — £1,200,000 • 1 bed • 1 bath • 10796 ft²
Commercial property for sale in West Road, Westcliff on Sea, SS0 — £55,000 • 1 bed • 1 bath


























































































































